Lokal na wynajem Wrocław, Stare Miasto, Centrum

129.00 m²
70,00 zł/m2
2 piętro
ASO-LW-40509

9 030 zł

Lokal na wynajem
Nowa oferta

Szczegóły oferty

Symbol oferty ASO-LW-40509
Powierzchnia 129,00 m²
Rodzaj budynku biurowiec
Kaucja zabezp. 14700
Opłaty w czynszu monitoring, fundusz remontowy, Części wspólne
Opłaty wg liczników woda, prąd, CO
Piętro 2
Liczba pięter w budynku 5
Stan lokalu luksusowy
Typ kaucji jednomiesięczna
Mies. czynsz admin. 695 PLN
Okna nowe drewniane
Instalacje wymienione
Przeznaczenie lokalu usługowy, biurowy
Czynsz najmu netto /m2 60 PLN
Czynsz najmu brutto /m2 86 PLN
Ogrzewanie miejskie
Winda tak
Usytuowanie jednostronne
Możliwość parkowania płatne
Położenie lokalu w głównym ciągu pieszych
Wejście od ulicy
Pomieszczenia
Liczba pomieszczeń biurowych 1
Powierzchnia pomieszczeń biurowych od [m2] 30 m2
Liczba pomieszczeń socjalnych 1
Liczba pomieszczeń sanitarnych 1
Anna Skwarciak

Anna Skwarciak

Agent
Nr licencji: 16519

Napisz wiadomość 869 Ofert

Opis nieruchomości

Prowizje pokrywa Właściciel nieruchomości

Fotografie sa jedynie poglądowe.


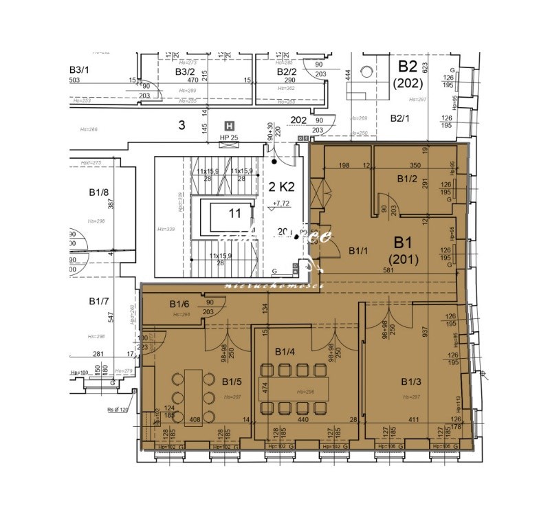
Przedmiotem oferty jest lokal usytuowany na II piętrze luksusowej kamienicy biurowej posadowionej w bliskim sąsiedztwie wrocławskiego Rynku. Lokal o powierzchni 129 m2. Wymieniona powierzchnia składa się z  sekretariatu, dwóch salek  konferencyjnych , gabinetu, pokoju, kuchni. Lokal posiada okablowanie strukturalne, instalacje wentylacyjno-klimatyzacyjną. Na tym samym poziomie komfortowe łazienki. Stylowy obiekt wyposażony w windę. Na parterze recepcja. Oferta skierowana do wymagających klientów. Współczynnik części  wspólnych 15%. Opłata eksploatacyjna 7,00 zł/ m2 + opłaty za media. Zapraszam na prezentacje. ASK OFFICE, Anna Skwarciak, nr tel. 609 842 932,
Wszelkie podane przez Pośrednika informacje nie są ofertą w rozumieniu Kodeksu Cywilnego

Podobne oferty

Lokal na wynajem

Wrocław, Stare Miasto

134 m2 59,00 zł/m2

Lokal na wynajem

Wrocław, Stare Miasto

124 m2 59,00 zł/m2

Lokal na wynajem

Wrocław, Stare Miasto

190 m2 42,00 zł/m2

Lokal na wynajem

Wrocław, Stare Miasto

130 m2 51,00 zł/m2

Agent

Proszę wprowadzić poprawne imię i nazwisko
Proszę wprowadzić poprawny numer telefonu
Proszę wprowadzić poprawny adres e-mail
Proszę zaznaczyć wymagane zgody
Rozwiąż równanie:
26 1
Niepoprawny wynik