Lokal na wynajem Wrocław, Stare Miasto, Rynek

149.00 m²
55,00 zł/m2
3 piętro
ASO-LW-39995

8 195 zł

Lokal na wynajem
Nowa oferta

Szczegóły oferty

Symbol oferty ASO-LW-39995
Powierzchnia 149,00 m²
Rodzaj budynku biurowiec
Kaucja zabezp. 8195
Piętro 3
Liczba pięter w budynku 3
Stan lokalu do wprowadzenia
Typ kaucji do uzgodnienia
Okna nowe PCV
Instalacje nowe
Rodzaj lokalu jednopoziomowy
Przeznaczenie lokalu biurowy, usługowy
Czynsz najmu netto /m2 55 PLN
Czynsz najmu brutto /m2 67 PLN
Ogrzewanie miejskie
Alarm tak
Winda tak
Liczba wind 1
Możliwość parkowania w pobliżu
Położenie lokalu ruchliwa ulica
Wejście od ulicy
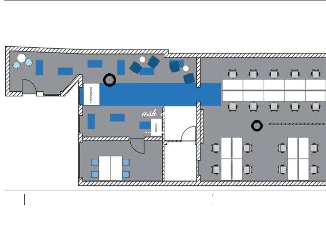
Pomieszczenia
Liczba pomieszczeń biurowych 4
Anna Skwarciak

Anna Skwarciak

Agent
Nr licencji: 16519

Napisz wiadomość 847 Ofert

Opis nieruchomości

Kompleks biurowy  usytuowany na wrocławskiej Starówce
Biurowiec Klasy B
Proponowana powierzchnia 105-254 m2
Współczynnik części wspólnych -0 %
Dostępność: 1.03.2024r.
 
Czynsz najmu powierzchni biurowej – 55,00 PLN/ 1m2/m-c
Opłata service charge – 13,00  PLN/ 1m2 /m-c
Opłata za energię elektryczną według zużycia

Prezentowana powierzchnia to lokal o powierzchni 149 m2.
Sekretariat hol, powierzchnia open space, gabinet, salka konferencyjna, pokój zamknięty,  toaleta, socjal.


W obiekcie dostępne lokale:
-105 m2
-149 m2

Standard:
- powierzchnia wykończona
wysokość pomieszczeń: 2,70 m
- wykładzina dywanowa
- oświetlenie ledowe
- klimatyzacja
- instalacja elektryczna
- Internet światłowodowy
- kontrola dostępu
- ogrzewanie miejskie Fortum

Dostęp do powierzchni 24 h na dobę, 7 dni w tygodniu
 
Anna Skwarciak ASK OFFICE
+48 609 842 932

a.skwarciak@askhome
Więcej ofert na stronie: 
www.askhome.pl

Wszelkie podane przez Pośrednika informacje nie są ofertą w rozumieniu Kodeksu Cywilnego

Podobne oferty

Lokal na wynajem

Wrocław, Stare Miasto

134 m2 59,00 zł/m2

Lokal na wynajem

Wrocław, Stare Miasto

124 m2 59,00 zł/m2

Lokal na wynajem

Wrocław, Stare Miasto

190 m2 42,00 zł/m2

Lokal na wynajem

Wrocław, Stare Miasto

130 m2 51,00 zł/m2

Agent

Proszę wprowadzić poprawne imię i nazwisko
Proszę wprowadzić poprawny numer telefonu
Proszę wprowadzić poprawny adres e-mail
Proszę zaznaczyć wymagane zgody
Rozwiąż równanie:
25 5
Niepoprawny wynik