| Symbol oferty | ASO-LW-40119 | 
| Powierzchnia | 237,00 m² | 
| Rodzaj budynku | BUDYNEK BIUROWY | 
| Opłaty wg liczników | prąd, CO, Woda zimna | 
| Piętro | 5 | 
| Stan lokalu | dobry | 
| Typ kaucji | do uzgodnienia | 
| Okna | PCV | 
| Przeznaczenie lokalu | biurowy | 
| Czynsz najmu netto /m2 | 30 PLN | 
| Czynsz najmu brutto /m2 | 36 PLN | 
| Winda | tak | 
| Pomieszczenia | |
 
                        
                    
                            Biurowiec Klasy B+
Parking naziemny 
Proponowana powierzchnia 98-500 m2
Współczynnik części wspólnych -0 %
Dostępność: 1.04.2025r.
 
Czynsz najmu powierzchni biurowej – 7,00 EUR / 1m2/m-c do 31.07.2026r.
Opłata service charge – 26,00  PLN/ 1m2 /m-c
Opłaty za media według zużycia
Miejsca postojowe – 60,00 EUR / m-c
 
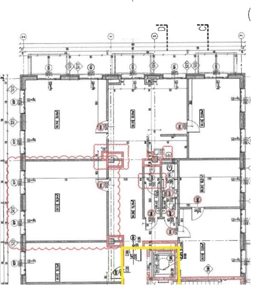
Prezentowana powierzchnia to lokal o powierzchni 237m2
Hol, sześć pokoi, kuchnia, łazienka.
Dostępne lokale:
Agent