Lokal na wynajem Wrocław, Stare Miasto, Przedmieście Świdnickie

165.00 m²
43,00 zł/m2
1 piętro
ASO-LW-40096

7 095 zł

Lokal na wynajem
Nowa oferta

Szczegóły oferty

Symbol oferty ASO-LW-40096
Powierzchnia 165,00 m²
Rodzaj budynku kamienica
Opłaty wg liczników prąd, CO, Woda zimna
Piętro 1
Stan lokalu dobry
Typ kaucji do uzgodnienia
Okna DREWNIANE NOWY TYP
Przeznaczenie lokalu biurowy
Czynsz najmu netto /m2 50 PLN
Czynsz najmu brutto /m2 52 PLN
Winda tak
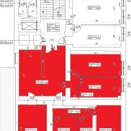
Pomieszczenia
Anna Skwarciak

Anna Skwarciak

Agent
Nr licencji: 16519

Napisz wiadomość 847 Ofert

Opis nieruchomości

Prowizje pokrywa Właściciel nieruchomości

Proponowana powierzchnia 51-460 m2
Współczynnik części wspólnych -0 %
Dostępność: 1.05.2025r.
 
Czynsz najmu powierzchni biurowej – 43,00 PLN/ 1m2/m-c
Eksploatacja - 10,00 PLN/ 1m2/m-c
Energia, ciepło, woda według zużycia
Miejsce postojowe- 200,00 PLN/mc



Prezentowana powierzchnia to lokal   o powierzchni  165  m2 usytuowany na I p kamienicy biurowej.

Hol, pięć gabinetów ,salka konferencyjna.  aneks kuchenny, toaleta.



W obiekcie dostępne lokale:

-51 m2

-80 m2,
-165 m2
-240m2

Standard:
- powierzchnia wykończona
wysokość pomieszczeń ok.2,70- 3m
- stylowa kamienica
- instalacja elektryczna
- okablowanie strukturalne
- klimatyzacja
- Internet światłowodowy
- ogrzewanie miejskie Fortum
- recepcjo-portiernia
Dostęp do powierzchni pn.-pt. godz. 7.00-19.00
 
Anna Skwarciak ASK OFFICE
+48 609 842 932
a.skwarciak@askhome
Więcej ofert na stronie: www.askhome.pl

Wszelkie podane przez Pośrednika informacje nie są ofertą w rozumieniu Kodeksu Cywilnego

 
 

Podobne oferty

Lokal na wynajem

Wrocław, Stare Miasto

134 m2 59,00 zł/m2

Lokal na wynajem

Wrocław, Stare Miasto

124 m2 59,00 zł/m2

Lokal na wynajem

Wrocław, Stare Miasto

190 m2 42,00 zł/m2

Lokal na wynajem

Wrocław, Stare Miasto

130 m2 51,00 zł/m2

Agent

Proszę wprowadzić poprawne imię i nazwisko
Proszę wprowadzić poprawny numer telefonu
Proszę wprowadzić poprawny adres e-mail
Proszę zaznaczyć wymagane zgody
Rozwiąż równanie:
11 4
Niepoprawny wynik