Lokal na wynajem Wrocław, Stare Miasto, Centrum

99.00 m²
55,00 zł/m2
5 piętro
ASO-LW-40021

5 445 zł

Lokal na wynajem
Nowa oferta

Szczegóły oferty

Symbol oferty ASO-LW-40021
Powierzchnia 99,00 m²
Rodzaj budynku biurowiec
Kaucja zabezp. 5445
Opłaty wg liczników prąd
Piętro 5
Liczba pięter w budynku 5
Stan lokalu do wprowadzenia
Okna nowe PCV
Instalacje nowe
Rodzaj lokalu jednopoziomowy
Przeznaczenie lokalu usługowy, biurowy
Czynsz najmu netto /m2 55 PLN
Czynsz najmu brutto /m2 68 PLN
Alarm tak
Winda tak
Przystosowania dla niepełnosprawnych tak
Położenie lokalu spokojna ulica
Wejście od ulicy
Pomieszczenia
Anna Skwarciak

Anna Skwarciak

Agent
Nr licencji: 16519

Napisz wiadomość 847 Ofert

Opis nieruchomości

Prowizje pokrywa Właściciel nieruchomości.

Kompleks biurowy  usytuowany jest w Centrum.
Biurowiec Klasy B+
Całkowita powierzchnia budynku:5 000m2
Parking naziemny 
Proponowana powierzchnia 48-1 200 m2
Współczynnik części wspólnych -0 %
Dostępność: 1.05.2025r.
 
Czynsz najmu powierzchni biurowej – 55,00 PLN/ 1m2/m-c
Opłata 
service charge – 27,70  PLN/ 1m2 /m-c
Opłata za energię elektryczną według zużycia.


Miejsca postojowe - 250,00 PL
N / m-c
 
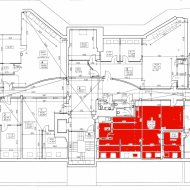
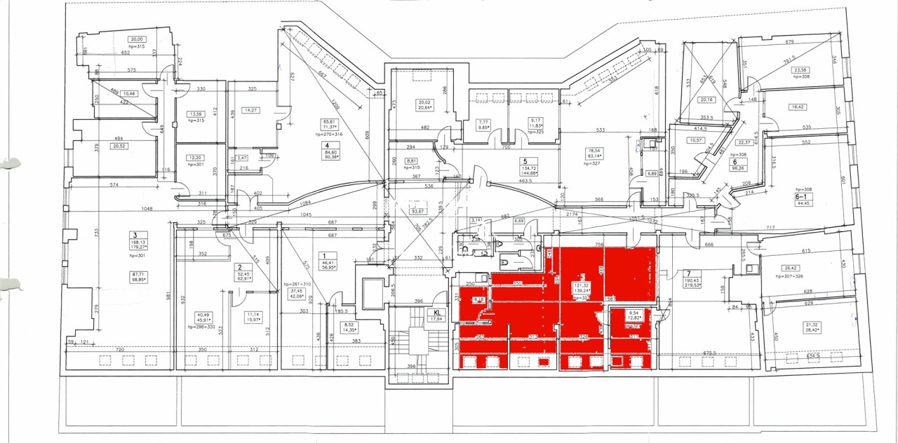
Prezentowana powierzchnia to lokal o powierzchni 99m2.
Hol,   open space, pokój, 3 salki konferencyjne, aneks kuchenny.

Toalety w częściach wspólnych.

Standard:
- powierzchnia wykończona
wysokość pomieszczeń: 2,70 m
- sufity podwieszane 
- instalacja SAP
- systemy klimatyzacji i wentylacji mechanicznej zabudowane w suficie
   podwieszanym
- wentylacja realizowana przez centralę wentylacyjną 
- klimatyzacja w każdym pokoju regulowana indywidualnie
- instalacja elektryczna
- instalacja teletechniczna 
- ogrzewanie: klimakonwektor

Dostęp do powierzchni 24 h na dobę, 7 dni w tygodniu
 
Anna Skwarciak ASK OFFICE
+48 609 842 932
a.skwarciak@askhome.

 

Podobne oferty

Lokal na wynajem

Wrocław, Stare Miasto

66 m2 60,00 zł/m2

Lokal na wynajem

Wrocław, Stare Miasto

83 m2 51,00 zł/m2

Lokal na wynajem

Wrocław, Stare Miasto

120 m2 38,00 zł/m2

Lokal na wynajem

Wrocław, Stare Miasto

130 m2 51,00 zł/m2

Agent

Proszę wprowadzić poprawne imię i nazwisko
Proszę wprowadzić poprawny numer telefonu
Proszę wprowadzić poprawny adres e-mail
Proszę zaznaczyć wymagane zgody
Rozwiąż równanie:
18 8
Niepoprawny wynik