Lokal na wynajem Wrocław, Stare Miasto, Centrum

91.00 m²
57,00 zł/m2
5 piętro
ASO-LW-41264

5 187 zł

Lokal na wynajem
Nowa oferta

Szczegóły oferty

Symbol oferty ASO-LW-41264
Powierzchnia 91,00 m²
Rodzaj budynku biurowiec
Opłaty wg liczników prąd
Piętro 5
Stan lokalu bardzo dobry
Typ kaucji do uzgodnienia
Instalacje częściowo wymienione
Przeznaczenie lokalu biurowy
Czynsz najmu netto /m2 57 PLN
Czynsz najmu brutto /m2 70 PLN
Winda tak
Anna Skwarciak

Anna Skwarciak

Agent
Nr licencji: 16519

Napisz wiadomość 965 Ofert

Opis nieruchomości


Prowizje pokrywa Właściciel nieruchomości

Kompleks biurowy  usytuowany nieopodal  wrocławskiej Starówki
Biurowiec Klasy B
Proponowana powierzchnia 91 -1000 m2
Współczynnik części wspólnych -5 %
Dostępność: 1.03.2026r.
 
Czynsz najmu powierzchni biurowej – 57,00 PLN/ 1m2/m-c
Opłata service charge – 25,00  PLN/ 1m2 /m-c
Opłata za energię elektryczną według zużycia

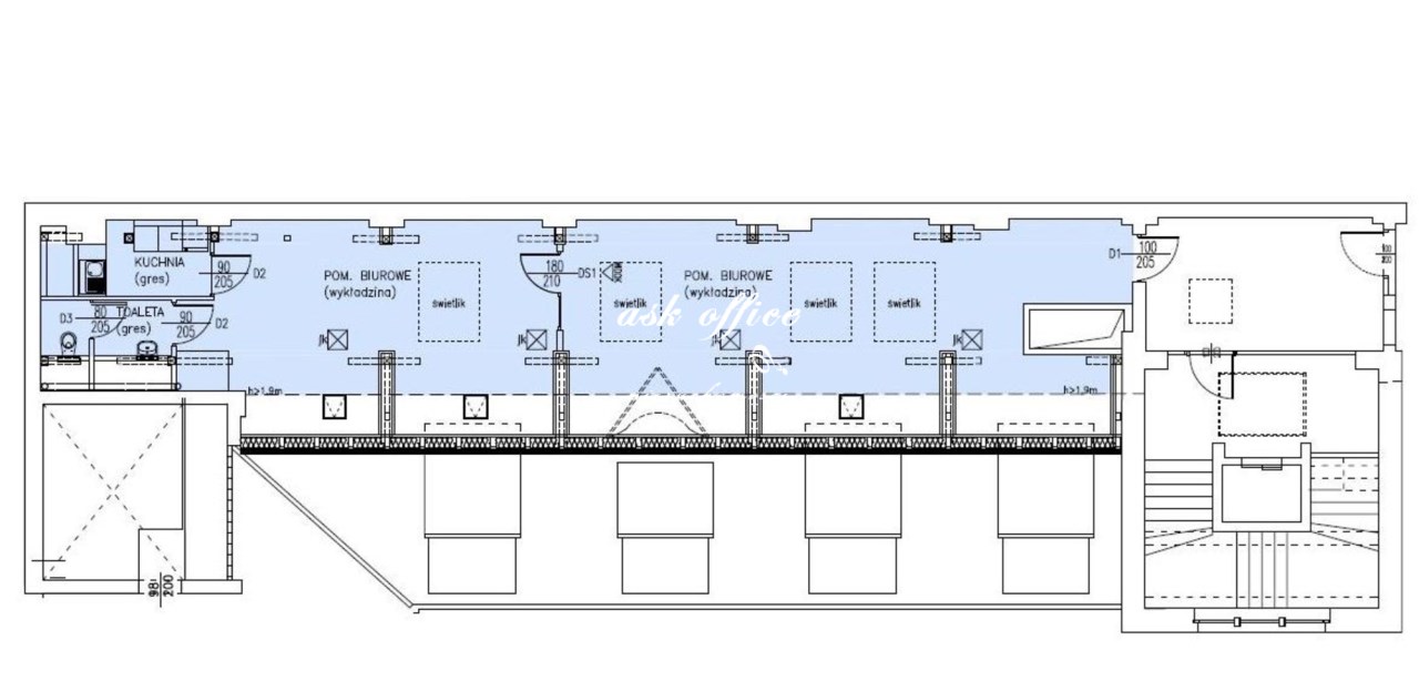
Prezentowana powierzchnia to lokal o powierzchni 91 m2.
Sekretariat, powierzchnia otwarta ,socjal, toaleta.

W obiekcie dostępne lokale:

  • 352m2
  • 186m2
  • 91m2
  • 241m2

Standard:
- powierzchnia wykończona
wysokość pomieszczeń: 3-4 m
- wykładzina dywanowa
- oświetlenie ledowe
- klimatyzacja
- instalacja elektryczna
- Internet światłowodowy
- monitoring
- ogrzewanie miejskie Fortum

Dostęp do powierzchni 24 h na dobę, 7 dni w tygodniu
 
Anna Skwarciak ASK OFFICE
+48 609 842 932
a.skwarciak@askhome
Więcej ofert na stronie: www.askhome.pl

Wszelkie podane przez Pośrednika informacje nie są ofertą w rozumieniu Kodeksu Cywilnego

 

Podobne oferty

Lokal na wynajem

Wrocław, Stare Miasto

66 m2 60,00 zł/m2

Lokal na wynajem

Wrocław, Stare Miasto

83 m2 51,00 zł/m2

Lokal na wynajem

Wrocław, Stare Miasto

120 m2 38,00 zł/m2

Lokal na wynajem

Wrocław, Stare Miasto

130 m2 51,00 zł/m2

Agent

Proszę wprowadzić poprawne imię i nazwisko
Proszę wprowadzić poprawny numer telefonu
Proszę wprowadzić poprawny adres e-mail
Proszę zaznaczyć wymagane zgody
Rozwiąż równanie:
21 5
Niepoprawny wynik