Lokal na wynajem Wrocław, Krzyki, Brochów

56.00 m²
74,00 zł/m2
6 piętro
ASO-LW-40664

4 144 zł

Lokal na wynajem
Nowa oferta

Szczegóły oferty

Symbol oferty ASO-LW-40664
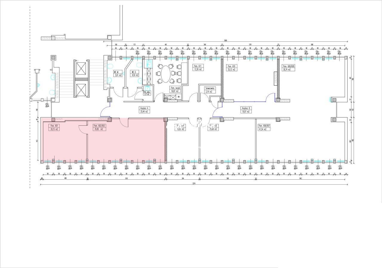
Powierzchnia 56,00 m²
Rodzaj budynku biurowiec
Piętro 6
Stan lokalu wysoki standard
Typ kaucji do uzgodnienia
Okna nowe PCV
Instalacje wymienione
Rodzaj lokalu jednopoziomowy
Przeznaczenie lokalu biurowy, usługowy
Czynsz najmu brutto /m2 91 PLN
Ogrzewanie miejskie
Alarm tak
Winda tak
Możliwość parkowania tak
Własny parking tak
Położenie lokalu ruchliwa ulica
Wejście od ulicy
Pomieszczenia
Liczba pomieszczeń biurowych 11
Liczba pomieszczeń socjalnych 1
Liczba pomieszczeń sanitarnych 1
Anna Skwarciak

Anna Skwarciak

Agent
Nr licencji: 16519

Napisz wiadomość 883 Ofert

Opis nieruchomości

Prowizje dla biura gwarantuje Właściciel nieruchomości.

Kompleks biurowy  usytuowany przy jednej z głównych arterii komunikacyjnych.

Biurowiec Klasy B+
Całkowita powierzchnia budynku: 5 500,00 m2
Parking Naziemny na 100 miejsc postojowych
Proponowana powierzchnia 20-400 m2
Współczynnik części wspólnych -25%
Dostępność: 1.11.2025r.
 
Czynsz najmu powierzchni biurowej – 74,00 PLN/ 1m2/m-c
Opłata za media – 12 PLN/ 1m2 /m-c
Serwis sprzątający  części wspólnych- 7,20 PLN/1m2/m-c


1 miejsce postojowe  240 PLN / m-c

Proponowana powierzchnia: 56 m2 ( 20,15+35,85)

Dostępne powierzchnie:

20 m2
50m2
70m2
100 m2
120 m2
190 m2
240m2

283 m2
Standard:

  • Ilość kondygnacji 8
  • Ilość klatek schodowych 1
  • Ilość dźwigów osobowych 2
  • Zamknięty parking dozorowany TV przemysłową 100 miejsc
  • Klimatyzacja pomieszczeń z indywidualnym sterowaniem w każdym pomieszczeniu, z możliwością realizacji grupowych ustawień (dotyczy części wynajmowanych powierzchni biurowych)
  • Cyfrowy system telekomunikacyjny (udostępniamy linie tel. wraz z aparatami telefonicznymi)
  • Okablowanie strukturalne kategorii 5+ w oparciu o światłowody,  Kontrola dostępu do biur, na poziomie wejścia do modułu biurowego – domofon
  • System alarmowy – zabezpiecza parter w częściach wspólnych i strefy wejściowe do budynku
  • System TV Przemysłowej – obejmuje parter i piwnicę w częściach wspólnych oraz parking
  • System ostrzegania pożarowego Sap oraz powiadamiania głosowego DSO
  • Całodobowa Portiernia − Monitoring
  • Hol, klatka schodowa, pomieszczenia sanitarne i socjalne wyłożone glazurą typu gres
  • Pomieszczenia biurowe wyłożone wykładziną dywanową
  • Każdy samodzielny segment biurowy posiada dwie przestronne toalety, pomieszczenie socjalne i techniczne.
  • Biura zostały wyposażone w nowoczesne oświetlenie ledowe.
  • Wszystkie pomieszczenia wykonane są w wysokim standardzie
  • Przy budynku mieści się obszerny parking monitorowany TV przemysłową, z kontrolą dostępu poprzez zapory sterowane z pilota oraz otwierane przez portiera
Anna Skwarciak ASK OFFICE
+48 609 842 932
a.skwarciak@askhome.pl

Więcej ofert na www.askhome.pl

Wszelkie podane przez Pośrednika informacje nie są ofertą w rozumieniu Kodeksu Cywilnego

 

Podobne oferty

Lokal na wynajem

Wrocław, Krzyki

99 m2 47,00 zł/m2

Lokal na wynajem

Wrocław, Krzyki

60 m2 50,00 zł/m2

Lokal na wynajem

Wrocław, Krzyki

84 m2 47,00 zł/m2

Lokal na wynajem

Wrocław, Krzyki

66 m2 59,00 zł/m2

Agent

Proszę wprowadzić poprawne imię i nazwisko
Proszę wprowadzić poprawny numer telefonu
Proszę wprowadzić poprawny adres e-mail
Proszę zaznaczyć wymagane zgody
Rozwiąż równanie:
28 4
Niepoprawny wynik