| Symbol oferty | ASO-LW-40116 | 
| Powierzchnia | 53,00 m² | 
| Rodzaj budynku | biurowiec | 
| Piętro | 2 | 
| Stan lokalu | wysoki standard | 
| Typ kaucji | do uzgodnienia | 
| Okna | nowe PCV | 
| Instalacje | wymienione | 
| Rodzaj lokalu | jednopoziomowy | 
| Przeznaczenie lokalu | usługowy, biurowy | 
| Czynsz najmu brutto /m2 | 91 PLN | 
| Ogrzewanie | miejskie | 
| Alarm | tak | 
| Winda | tak | 
| Możliwość parkowania | tak | 
| Własny parking | tak | 
| Położenie lokalu | ruchliwa ulica | 
| Wejście | od ulicy | 
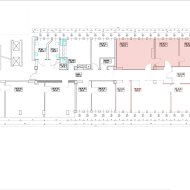
| Pomieszczenia | |
| Liczba pomieszczeń biurowych | 11 | 
| Liczba pomieszczeń socjalnych | 1 | 
| Liczba pomieszczeń sanitarnych | 1 | 
 
                        
                    
                            Prowizje dla biura gwarantuje Właściciel nieruchomości.
Kompleks biurowy  usytuowany przy jednej z głównych arterii komunikacyjnych.
Biurowiec Klasy B+
Całkowita powierzchnia budynku: 5 500,00 m2
Parking Naziemny na 100 miejsc postojowych
Proponowana powierzchnia 20-400 m2
Współczynnik części wspólnych -25%
Dostępność: 1.01.2025r.
 
Czynsz najmu powierzchni biurowej – 74,00 PLN/ 1m2/m-c
Opłata za media – 12 PLN/ 1m2 /m-c
Serwis sprzątający  części wspólnych- 11,20 PLN/1m2/m-c
1 miejsce postojowe  240 PLN / m-c
Proponowana powierzchnia: 53 m2 ( 24,81m2;14,13m2;13,79m2)
Dostępne powierzchnie:
 
Agent