Lokal na wynajem Wrocław, Krzyki, Borek

66.00 m²
56,00 zł/m2
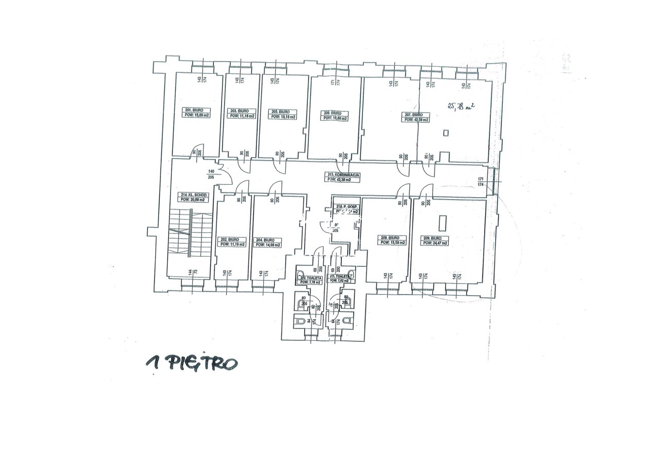
1 piętro
ASO-LW-40656

3 696 zł

Lokal na wynajem
Nowa oferta

Szczegóły oferty

Symbol oferty ASO-LW-40656
Powierzchnia 66,00 m²
Rodzaj budynku BUDYNEK BIUROWY
Piętro 1
Stan lokalu dobry
Typ kaucji trzymiesięczna
Okna PCV
Instalacje dobre
Rodzaj lokalu jednopoziomowy
Przeznaczenie lokalu biurowy, usługowy
Czynsz najmu netto /m2 56 PLN
Czynsz najmu brutto /m2 80 PLN
Pomieszczenia
Anna Skwarciak

Anna Skwarciak

Agent
Nr licencji: 16519

Napisz wiadomość 881 Ofert

Opis nieruchomości

Prowizje dla biura gwarantuje Właściciel nieruchomości.

Kompleks biurowy  usytuowany przy jednej z głównych arterii komunikacyjnych.
Biurowiec  B
Całkowita powierzchnia budynku: 1000,00 m2

Proponowana powierzchnia 16m2- 66 m2
Współczynnik części wspólnych -1,37%
Dostępność: 1.01.2026r.
 
Czynsz najmu powierzchni biurowej – 56,00 PLN/ 1m2/m-c
Opłata service charge – 21,00 PLN/ 1m2 /m-c


Miejsce postojowe w cenie -  250,00 zł/mc



Do wynajęcia lokal biurowy o powierzchni ok. 66m2 ( trzy sąsiednie pokoje 15,59m2; 24,47m2; 25,78m2) usytuowany na I p. obiektu.


Dostępne lokale:
15,59m2
24,47m2
25,78m2
26,17m2 ( 11,19m2+ 14,98m2)


Standard:

  • sufity podwieszane
  • wysokie pomieszczenia- 2,80m
  • uchylne okna
  • rolety okienne
  • optymalny dostęp do światła dziennego
  • wykładzina dywanowa
  • infrastruktura teletechniczna
  • klimatyzacja
  • kontrola dostępu
Anna Skwarciak ASK OFFICE
+48 609 842 932
a.skwarciak@askhome.pl

Wszelkie podane przez Pośrednika informacje nie są ofertą w rozumieniu Kodeksu Cywilnego
 

Podobne oferty

Lokal na wynajem

Wrocław, Krzyki

99 m2 47,00 zł/m2

Lokal na wynajem

Wrocław, Krzyki

53 m2 49,50 zł/m2

Lokal na wynajem

Wrocław, Krzyki

60 m2 50,00 zł/m2

Lokal na wynajem

Wrocław, Krzyki

84 m2 47,00 zł/m2

Agent

Proszę wprowadzić poprawne imię i nazwisko
Proszę wprowadzić poprawny numer telefonu
Proszę wprowadzić poprawny adres e-mail
Proszę zaznaczyć wymagane zgody
Rozwiąż równanie:
27 4
Niepoprawny wynik