Lokal na wynajem Wrocław, Stare Miasto, Centrum

67.00 m²
40,00 zł/m2
2 piętro
ASO-LW-40887

2 680 zł

Lokal na wynajem
Nowa oferta

Szczegóły oferty

Symbol oferty ASO-LW-40887
Powierzchnia 67,00 m²
Rodzaj budynku biurowiec
Opłaty wg liczników prąd
Piętro 2
Stan lokalu bardzo dobry
Typ kaucji jednomiesięczna
Okna aluminiowe
Instalacje dobre
Rodzaj lokalu jednopoziomowy
Przeznaczenie lokalu usługowy, biurowy
Winda tak
Anna Skwarciak

Anna Skwarciak

Agent
Nr licencji: 16519

Napisz wiadomość 924 Ofert

Opis nieruchomości

Prowizje pokrywa Właściciel nieruchomości

Kompleks biurowy  usytuowany nieopodal  wrocławskiej Starówki
Biurowiec Klasy A
Proponowana powierzchnia 67 -400m2
Współczynnik części wspólnych -8 %
Dostępność: 1.03.2026r.
 
Czynsz najmu powierzchni biurowej – 40,00-50,00 PLN/ 1m2/m-c
Opłata service charge – 19,00  PLN/ 1m2 /m-c
Opłata za energię elektryczną według zużycia

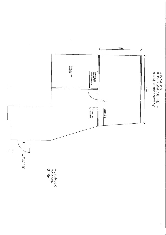
Prezentowana powierzchnia to lokal o powierzchni 67 m2.
Sekretariat ,salka konferencyjna, gabinet .

Socjal, toaleta w częściach wspólnych

W obiekcie dostępne lokale:

  • 105m2
  • 280m2


Standard:
- powierzchnia wykończona
wysokość pomieszczeń: 2,80 m
- wykładzina dywanowa
- oświetlenie ledowe
- klimatyzacja
- instalacja elektryczna
- Internet światłowodowy
- recepcja
- dostęp 24h

Dostęp do powierzchni 24 h na dobę, 7 dni w tygodniu
 
Anna Skwarciak ASK OFFICE
+48 609 842 932
a.skwarciak@askhome
Więcej ofert na stronie: www.askhome.pl

Wszelkie podane przez Pośrednika informacje nie są ofertą w rozumieniu Kodeksu Cywilnego
 

 

Podobne oferty

Lokal na wynajem

Wrocław, Stare Miasto

68 m2 50,00 zł/m2

Lokal na wynajem

Wrocław, Stare Miasto

45 m2 51,00 zł/m2

Lokal na wynajem

Wrocław, Stare Miasto

42 m2 50,00 zł/m2

Lokal na wynajem

Wrocław, Stare Miasto

40 m2 65,00 zł/m2

Agent

Proszę wprowadzić poprawne imię i nazwisko
Proszę wprowadzić poprawny numer telefonu
Proszę wprowadzić poprawny adres e-mail
Proszę zaznaczyć wymagane zgody
Rozwiąż równanie:
15 7
Niepoprawny wynik