Lokal na wynajem Wrocław, Stare Miasto, Centrum

270.00 m²
70,00 zł/m2
3 piętro
ASO-LW-41234

18 900 zł

Lokal na wynajem
Nowa oferta

Szczegóły oferty

Symbol oferty ASO-LW-41234
Powierzchnia 270,00 m²
Rodzaj budynku biurowiec
Opłaty w czynszu Części wspólne, fundusz remontowy, monitoring
Opłaty wg liczników CO, prąd, woda
Piętro 3
Liczba pięter w budynku 5
Stan lokalu luksusowy
Typ kaucji do uzgodnienia
Okna nowe drewniane
Instalacje wymienione
Przeznaczenie lokalu biurowy, usługowy
Czynsz najmu netto /m2 70 PLN
Czynsz najmu brutto /m2 86 PLN
Ogrzewanie miejskie
Winda tak
Usytuowanie jednostronne
Możliwość parkowania płatne
Położenie lokalu w głównym ciągu pieszych
Wejście od ulicy
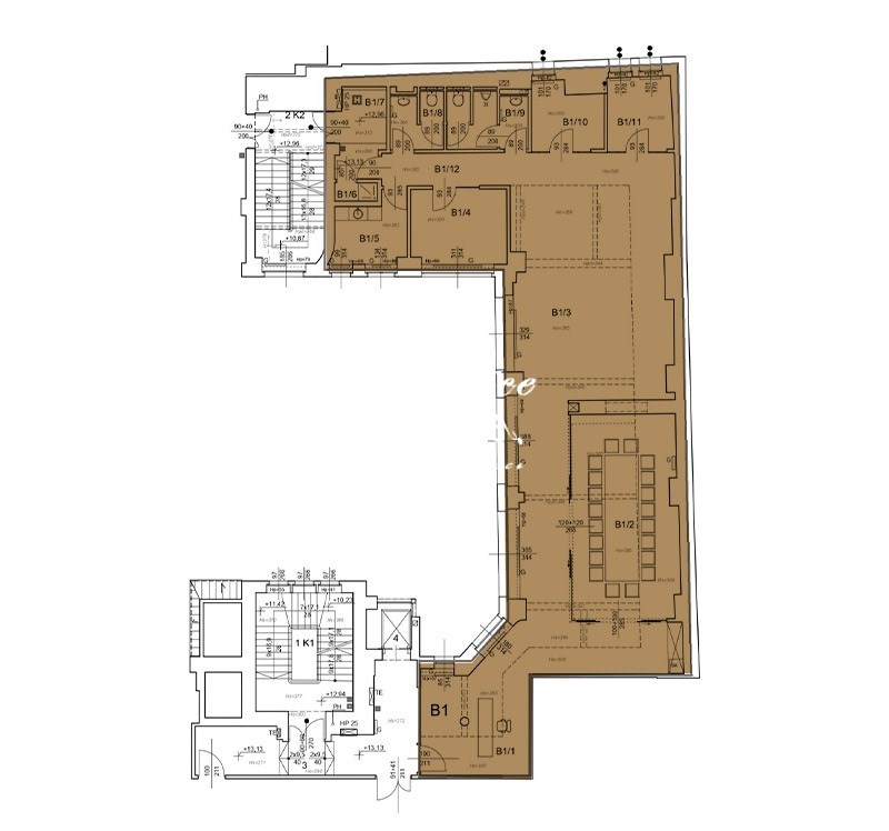
Pomieszczenia
Liczba pomieszczeń biurowych 1
Powierzchnia pomieszczeń biurowych od [m2] 30 m2
Liczba pomieszczeń socjalnych 1
Liczba pomieszczeń sanitarnych 1
Anna Skwarciak

Anna Skwarciak

Agent
Nr licencji: 16519

Napisz wiadomość 960 Ofert

Opis nieruchomości

Prowizje pokrywa Właściciel nieruchomości



Przedmiotem oferty jest lokal usytuowany na III piętrze luksusowej kamienicy biurowej posadowionej w bliskim sąsiedztwie wrocławskiego Rynku. Lokal o powierzchni 240 m2. Wymieniona powierzchnia składa się z sekretariatu, powierzchni typu  open space, salki  konferencyjnej, trzech gabinetów,  kuchni, toalety i łazienki Lokal posiada okablowanie strukturalne, instalacje wentylacyjno-klimatyzacyjną. Stylowy obiekt wyposażony w windę. Na parterze recepcja. Oferta skierowana do wymagających klientów. Współczynnik części  wspólnych 13%. Opłata eksploatacyjna 7,00 zł/ m2 + opłaty za media. Zapraszam na prezentacje. ASK OFFICE, Anna Skwarciak, nr tel. 609 842 932,
Wszelkie podane przez Pośrednika informacje nie są ofertą w rozumieniu Kodeksu Cywilnego

Podobne oferty

Lokal na wynajem

Wrocław, Stare Miasto

400 m2 55,00 zł/m2

Lokal na wynajem

Wrocław, Stare Miasto

486 m2 47,33 zł/m2

Lokal na wynajem

Wrocław, Stare Miasto

537 m2 40,00 zł/m2

Lokal na wynajem

Wrocław, Stare Miasto

234 m2 58,97 zł/m2

Agent

Proszę wprowadzić poprawne imię i nazwisko
Proszę wprowadzić poprawny numer telefonu
Proszę wprowadzić poprawny adres e-mail
Proszę zaznaczyć wymagane zgody
Rozwiąż równanie:
20 8
Niepoprawny wynik