Lokal na wynajem Wrocław, Fabryczna, Muchobór Wielki

263.00 m²
55,00 zł/m2
wysoki parter piętro
ASO-LW-41170

14 465 zł

Lokal na wynajem
Nowa oferta

Szczegóły oferty

Symbol oferty ASO-LW-41170
Powierzchnia 263,00 m²
Rodzaj budynku biurowiec
Opłaty wg liczników prąd
Piętro wysoki parter
Stan lokalu dobry
Typ kaucji dwumiesięczna
Okna aluminiowe
Instalacje dobre
Rodzaj lokalu jednopoziomowy
Przeznaczenie lokalu usługowy, magazynowy, inny, handlowy, biurowy, biurowo - magazynowy
Czynsz najmu netto /m2 55 PLN
Czynsz najmu brutto /m2 68 PLN
Winda tak
Liczba wind 1
Anna Skwarciak

Anna Skwarciak

Agent
Nr licencji: 16519

Napisz wiadomość 972 Ofert

Opis nieruchomości

Kompleks biurowy  usytuowany jest w zachodniej części Wrocławia.
Biurowiec Klasy B


Parking naziemny 
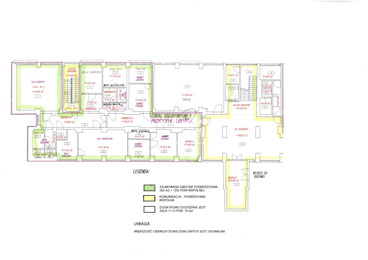
Proponowana powierzchnia 255 m2
Współczynnik części wspólnych -15%
Dostępność: 1.09.2025r.
 
Czynsz najmu powierzchni biurowej – 55,00 PLN/ 1m2/m-c
Opłata service charge – 19,00  PLN/ 1m2 /m-c


Miejsca postojowe  w cenie czynszu najmu

 
Prezentowana powierzchnia to lokal o powierzchni  263 m2 usytuowany na wysokim parterze idealna na działalność o profilu medycznym.

  • Hol
  • Sekretariat
  • 2 gabinety medyczne ( dwupomieszczeniowe)
  • Sala operacyjna
  • Sala zabiegowa
  • 2 sale chorych
  • Pokój biurowy
  • Łazienka z kabina prysznicową
  • Toaleta


Przyłącze wody w gabinetach.
Kanalizacja.

Łazienki w częściach wspólnych.
Niezależne wejście.


Standard:
- powierzchnia wykończona
- systemy wentylacji mechanicznej 
- instalacja elektryczna 
- ogrzewanie gazowe

Dostęp do powierzchni 24 h na dobę, 7 dni w tygodniu
 
Anna Skwarciak ASK OFFICE
+48 609 842 932
a.skwarciak@askhome.pl
 

Podobne oferty

Lokal na wynajem

Wrocław, Fabryczna

280 m2 60,00 zł/m2

Lokal na wynajem

Wrocław, Fabryczna

290 m2 55,86 zł/m2

Lokal na wynajem

Wrocław, Fabryczna

310 m2 51,00 zł/m2

Lokal na wynajem

Wrocław, Fabryczna

201 m2 55,00 zł/m2

Agent

Proszę wprowadzić poprawne imię i nazwisko
Proszę wprowadzić poprawny numer telefonu
Proszę wprowadzić poprawny adres e-mail
Proszę zaznaczyć wymagane zgody
Rozwiąż równanie:
19 6
Niepoprawny wynik