Lokal na wynajem Wrocław, Fabryczna, Muchobór Wielki

263.00 m²
55,00 zł/m2
wysoki parter piętro
ASO-LW-40978

14 465 zł

Lokal na wynajem
Nowa oferta

Szczegóły oferty

Symbol oferty ASO-LW-40978
Powierzchnia 263,00 m²
Rodzaj budynku biurowiec
Opłaty wg liczników prąd
Piętro wysoki parter
Stan lokalu dobry
Typ kaucji dwumiesięczna
Okna aluminiowe
Instalacje dobre
Rodzaj lokalu jednopoziomowy
Przeznaczenie lokalu inny, biurowo - magazynowy, usługowy, biurowy, handlowy, magazynowy
Czynsz najmu netto /m2 55 PLN
Czynsz najmu brutto /m2 68 PLN
Winda tak
Liczba wind 1
Anna Skwarciak

Anna Skwarciak

Agent
Nr licencji: 16519

Napisz wiadomość 924 Ofert

Opis nieruchomości

Kompleks biurowy  usytuowany jest w zachodniej części Wrocławia.
Biurowiec Klasy B


Parking naziemny 
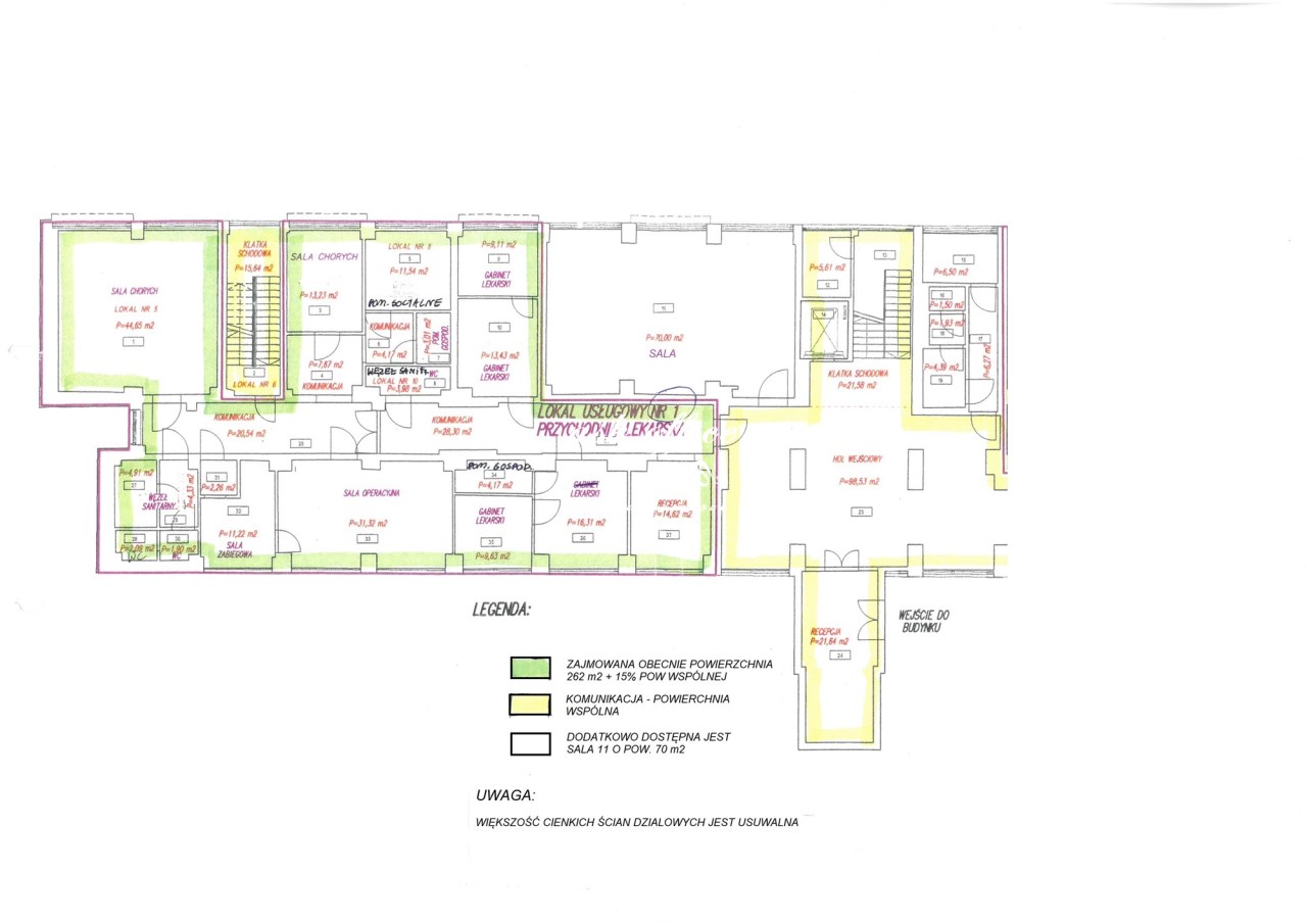
Proponowana powierzchnia 255 m2
Współczynnik części wspólnych -15%
Dostępność: 1.09.2025r.
 
Czynsz najmu powierzchni biurowej – 55,00 PLN/ 1m2/m-c
Opłata service charge – 19,00  PLN/ 1m2 /m-c


Miejsca postojowe  w cenie czynszu najmu

 
Prezentowana powierzchnia to lokal o powierzchni  263 m2 usytuowany na wysokim parterze idealna na działalność o profilu medycznym.

  • Hol
  • Sekretariat
  • 2 gabinety medyczne ( dwupomieszczeniowe)
  • Sala operacyjna
  • Sala zabiegowa
  • 2 sale chorych
  • Pokój biurowy
  • Łazienka z kabina prysznicową
  • Toaleta


Przyłącze wody w gabinetach.
Kanalizacja.

Łazienki w częściach wspólnych.
Niezależne wejście.


Standard:
- powierzchnia wykończona
- systemy wentylacji mechanicznej 
- instalacja elektryczna 
- ogrzewanie gazowe

Dostęp do powierzchni 24 h na dobę, 7 dni w tygodniu
 
Anna Skwarciak ASK OFFICE
+48 609 842 932
a.skwarciak@askhome.pl
 

Podobne oferty

Lokal na wynajem

Wrocław, Fabryczna

280 m2 60,00 zł/m2

Lokal na wynajem

Wrocław, Fabryczna

290 m2 55,86 zł/m2

Lokal na wynajem

Wrocław, Fabryczna

310 m2 51,00 zł/m2

Lokal na wynajem

Wrocław, Fabryczna

201 m2 55,00 zł/m2

Agent

Proszę wprowadzić poprawne imię i nazwisko
Proszę wprowadzić poprawny numer telefonu
Proszę wprowadzić poprawny adres e-mail
Proszę zaznaczyć wymagane zgody
Rozwiąż równanie:
29 5
Niepoprawny wynik