Lokal na wynajem Wrocław, Krzyki, Południe

220.00 m²
45,00 zł/m2
1 piętro
ASO-LW-40521

9 900 zł

Lokal na wynajem
Nowa oferta

Szczegóły oferty

Symbol oferty ASO-LW-40521
Powierzchnia 220,00 m²
Opłaty wg liczników prąd
Piętro 1
Stan lokalu dobry
Typ kaucji do uzgodnienia
Okna PCV
Przeznaczenie lokalu biurowy, usługowy
Czynsz najmu brutto /m2 55 PLN
Winda tak
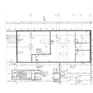
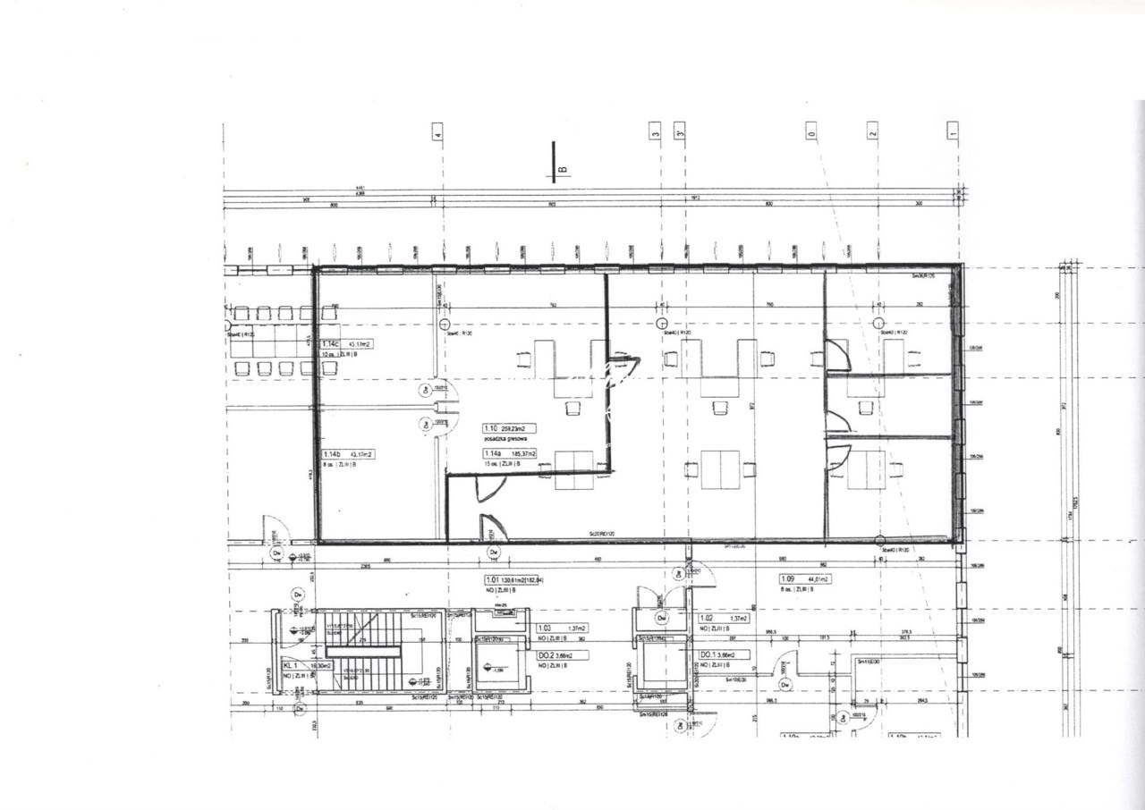
Pomieszczenia
Anna Skwarciak

Anna Skwarciak

Agent
Nr licencji: 16519

Napisz wiadomość 869 Ofert

Opis nieruchomości

Prowizje dla biura gwarantuje Właściciel nieruchomości.

Kompleks biurowy  usytuowany południowej części Wrocławia.
Biurowiec Klasy B+
Całkowita powierzchnia budynku: 3 700,00 m2
Parking Naziemny na 64  miejsc postojowych
Proponowana powierzchnia 90-300m2
Współczynnik części wspólnych -15%
Dostępność: 1.12.2025r.
 
Czynsz najmu powierzchni biurowej – 45,00  PLN/ 1m2/m-c
Opłata service charge – 27,00 PLN/ 1m2 /m-c
Miejsce postojowe  w cenie czynszu najmu na 50 m2 najmowanej powierzchni
Proponowana powierzchnia: 220m2

Dwie powierzchnie typu open space, gabinet, dwie salki konferencyjne.

Proponowane powierzchnie

  • 94m2
  • 220m2



Standard:
  • sufity podwieszane
  • optymalne doświetlenie pomieszczeń
  • uchylne okna
  • rolety okienne
  • optymalny dostęp do światła dziennego
  • wykładzina dywanowa
  • pełna infrastruktura teletechniczna
  • energooszczędny system ogrzewania, wentylacji i klimatyzacji
  • kontrola dostępu
  • recepcja ogólno budynkowa
  • ochrona
Anna Skwarciak ASK OFFICE
+48 609 842 932
a.skwarciak@askhome.pl

 

Podobne oferty

Lokal na wynajem

Wrocław, Krzyki

163 m2 45,00 zł/m2

Lokal na wynajem

Wrocław, Krzyki

156 m2 50,00 zł/m2

Lokal na wynajem

Wrocław, Krzyki

180 m2 59,00 zł/m2

Lokal na wynajem

Wrocław, Krzyki

214 m2 40,00 zł/m2

Agent

Proszę wprowadzić poprawne imię i nazwisko
Proszę wprowadzić poprawny numer telefonu
Proszę wprowadzić poprawny adres e-mail
Proszę zaznaczyć wymagane zgody
Rozwiąż równanie:
24 4
Niepoprawny wynik