Lokal na wynajem Wrocław, Fabryczna, Muchobór Wielki

150.00 m²
46,00 zł/m2
parter
ASO-LW-40578

6 900 zł

Lokal na wynajem
Nowa oferta

Szczegóły oferty

Symbol oferty ASO-LW-40578
Powierzchnia 150,00 m²
Rodzaj budynku budynek wolnostojący
Opłaty wg liczników prąd
Piętro parter
Stan lokalu bardzo dobry
Typ kaucji jednomiesięczna
Okna PCV
Przeznaczenie lokalu biurowy, usługowy, handlowy
Czynsz najmu netto /m2 46 PLN
Czynsz najmu brutto /m2 57 PLN
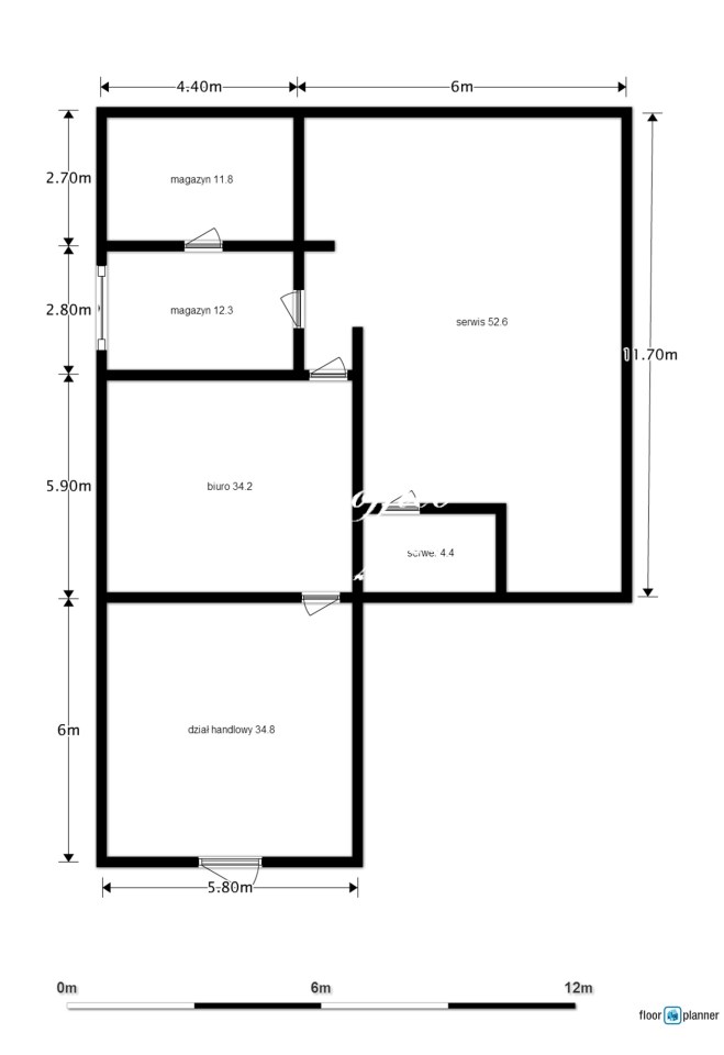
Pomieszczenia
Anna Skwarciak

Anna Skwarciak

Agent
Nr licencji: 16519

Napisz wiadomość 881 Ofert

Opis nieruchomości

Prowizje dla biura pokrywa Właściciel nieruchomości.

Lokal biurowo- magazynowy na parterze obiektu.

Parking naziemny rotacyjny

Proponowana powierzchnia 150 m2
Współczynnik części wspólnych -0 %
Dostępność: od 1.02. 2026r.
 
Czynsz najmu powierzchni biurowej – 46,00 PLN/ 1m2/m-c
Opłata service charge – 7,18 PLN/ 1m2 /m-c 

Energia według zużycia

Prezentowana powierzchnia to lokal o powierzchni  150 m2 usytuowany na parterze obiektu.
Sekretariat, powierzchnia biurowo - wystawienniczo- serwisowa, magazyn z brama rolowaną, socjal.

Łazienka w częściach wspólnych.


Standard:

  • Dozorowany parking 24h/
  • Ochrona i monitoring
  • Pokoje śniadań/kuchnie
  • Stojaki na rowery
  • Konserwatorzy


Dostęp do powierzchni 24 h na dobę, 7 dni w tygodniu
 
Anna Skwarciak ASK OFFICE
+48 609 842 932
a.skwarciak@askhome

Wszelkie podane przez Pośrednika informacje nie są ofertą w rozumieniu Kodeksu Cywilnego
 


 

Podobne oferty

Lokal na wynajem

Wrocław, Fabryczna

153 m2 32,00 zł/m2

Lokal na wynajem

Wrocław, Fabryczna

110 m2 55,00 zł/m2

Lokal na wynajem

Wrocław, Fabryczna

132 m2 45,00 zł/m2

Lokal na wynajem

Wrocław, Fabryczna

164 m2 45,00 zł/m2

Agent

Proszę wprowadzić poprawne imię i nazwisko
Proszę wprowadzić poprawny numer telefonu
Proszę wprowadzić poprawny adres e-mail
Proszę zaznaczyć wymagane zgody
Rozwiąż równanie:
24 2
Niepoprawny wynik