Lokal na wynajem Wrocław, Fabryczna, Grabiszyn

114.00 m²
57,00 zł/m2
1 piętro
ASO-LW-41193

6 498 zł

Lokal na wynajem
Nowa oferta

Szczegóły oferty

Symbol oferty ASO-LW-41193
Powierzchnia 114,00 m²
Rodzaj budynku biurowiec
Piętro 1
Liczba pięter w budynku 3
Stan lokalu dobry
Typ kaucji trzymiesięczna
Okna PCV
Instalacje nowe
Rodzaj lokalu jednopoziomowy
Przeznaczenie lokalu usługowy, biurowy
Czynsz najmu netto /m2 57 PLN
Czynsz najmu brutto /m2 70 PLN
Ogrzewanie miejskie
Alarm tak
Winda tak
Liczba wind 1
Usytuowanie jednostronne
Możliwość parkowania tak
Własny parking tak
Położenie lokalu ruchliwa ulica
Wejście od ulicy
Pomieszczenia
Liczba pomieszczeń biurowych 1
Liczba pomieszczeń socjalnych 1
Anna Skwarciak

Anna Skwarciak

Agent
Nr licencji: 16519

Napisz wiadomość 960 Ofert

Opis nieruchomości

Prowizje pokrywa Własciciel nieruchomosci.

Kameralny budynek biurowy klasy B.
Parking naziemny
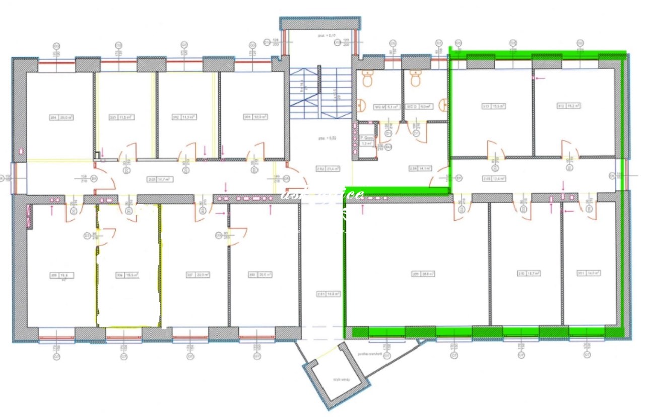
Proponowana powierzchnia 114 m2 usytuowana na Ip.
Współczynnik części wspólnych 31%
Dostępność: 1.04.2026r.
 
Czynsz najmu powierzchni biurowej – 57,00 PLN/ 1m2/m-c
Opłata service charge – 15,00 PLN/ 1m² /m-c


Prezentowana powierzchnia 114 m2.

Hol, pięć pokoi biurowych.
Kuchnia, socjal w częściach wspólnych.

Standard:


  • system ogrzewania, wentylacji i chłodnictwa,
  • monitoring i system alarmowy
  • okablowanie strukturalne i sieć telefoniczna
2 windy

Kondygnacje biurowe mogą być użytkowane przez jednego lub wielu najemców.
Na każdym piętrze biurowym znajduje się pomieszczenie socjalne, gospodarcze oraz węzeł sanitarny.
Parking przed obiektem w cenie czynszu najmu.


Anna Skwarciak ASK OFFICE
+48 609 842 932
a.skwarciak@askhome.pl

 Wszelkie podane przez Pośrednika informacje nie są ofertą w rozumieniu Kodeksu Cywilnego

Podobne oferty

Lokal na wynajem

Wrocław, Fabryczna

153 m2 32,00 zł/m2

Lokal na wynajem

Wrocław, Fabryczna

110 m2 55,00 zł/m2

Lokal na wynajem

Wrocław, Fabryczna

132 m2 45,00 zł/m2

Lokal na wynajem

Wrocław, Fabryczna

164 m2 45,00 zł/m2

Agent

Proszę wprowadzić poprawne imię i nazwisko
Proszę wprowadzić poprawny numer telefonu
Proszę wprowadzić poprawny adres e-mail
Proszę zaznaczyć wymagane zgody
Rozwiąż równanie:
16 8
Niepoprawny wynik