Lokal na wynajem Wrocław, Krzyki, Przedmieście Oławskie

56.00 m²
85,00 zł/m2
5 piętro
ASO-LW-40213

4 760 zł

Lokal na wynajem
Nowa oferta

Szczegóły oferty

Symbol oferty ASO-LW-40213
Powierzchnia 56,00 m²
Rodzaj budynku biurowiec
Opłaty wg liczników prąd
Piętro 5
Liczba pięter w budynku 6
Stan lokalu bardzo dobry
Typ kaucji trzymiesięczna
Okna aluminiowe
Instalacje dobre
Rodzaj lokalu jednopoziomowy
Przeznaczenie lokalu biurowy, usługowy
Czynsz najmu netto /m2 85 PLN
Czynsz najmu brutto /m2 104 PLN
Winda tak
Liczba wind 3
Pomieszczenia
Anna Skwarciak

Anna Skwarciak

Agent
Nr licencji: 16519

Napisz wiadomość 854 Ofert

Opis nieruchomości

Prowizje pokrywa Właściciel nieruchomości

Kompleks biurowy  usytuowany jest w południowo-wschodniej części i Wrocławia
Biurowiec Klasy A
Całkowita powierzchnia budynku: 13 500m2

Kondygnacje - 6
Parking  naziemny 40 miejsc

Parking podziemny  155 m2
Współczynnik miejsc parkingowych 1/70 mkw
Proponowana powierzchnia 56m2 -648 m2
Współczynnik części wspólnych 6%

Dostępność: 1.09.2025 r.
 
Czynsz najmu powierzchni biurowej – 85,00 PLN/ 1m2/m-c
Service charge - 23,00 PLN/1m2/m-c
Media według zużycia
1 miejsce postojowe  300,00PLN/ m-c


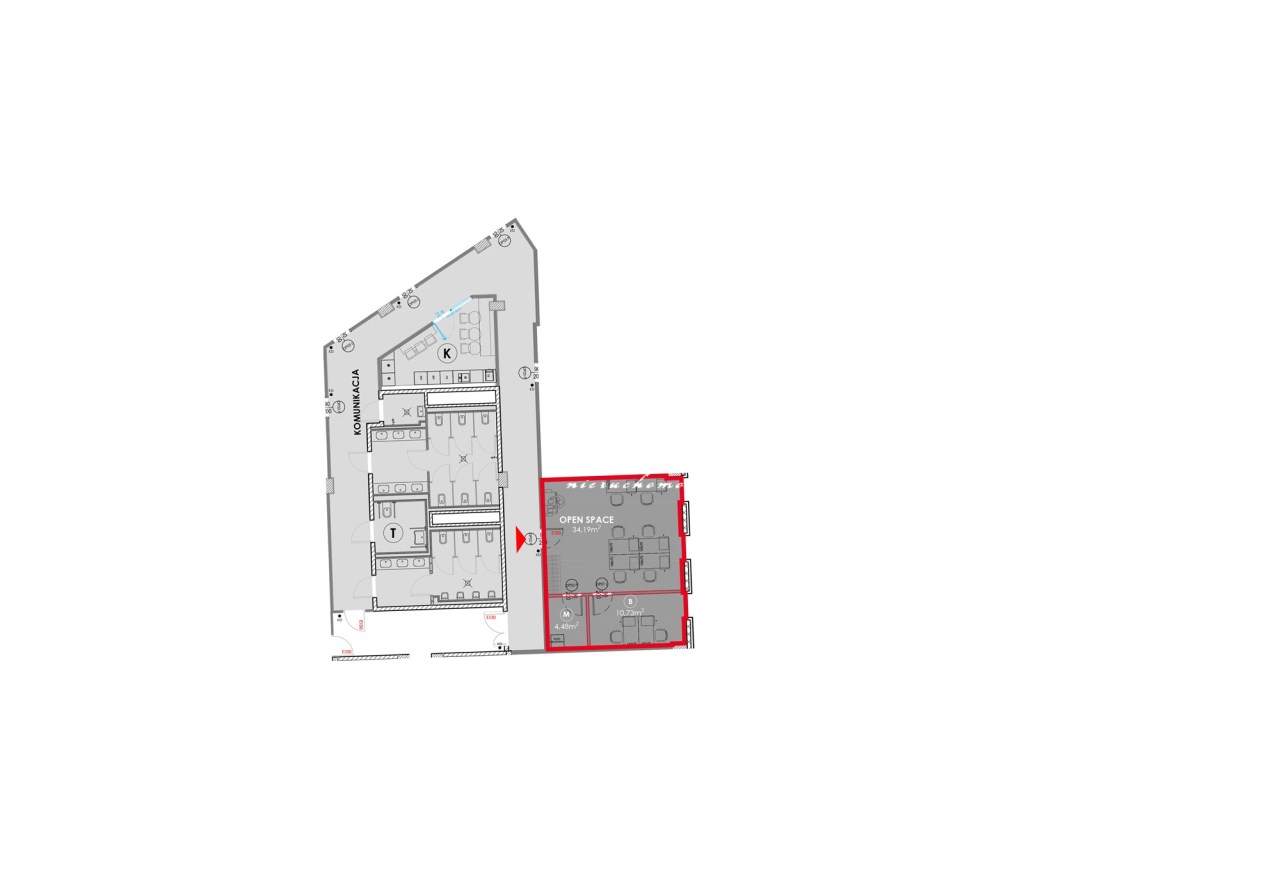
Prezentowana powierzchnia  lokal 56 m2 brutto.
Open space, gabinet, archiwum.

Umowa na min. 24 miesiące.

Dostępne lokale na  V p.

  •   59 m2
  •   61 m2
  • 101 m2
  • 157 m2
  • 121 m2


Udogodnienia dla najemców
  • energooszczędny system ogrzewania
  • optymalny dostęp do światła dziennego
  • reprezentacyjne lobby
  • ochrona i monitoring budynku
  • system kontroli dostępu
  • stacje ładowania samochodów elektrycznych
  • miejsca parkingowe dla rowerów
  • obiekt przystosowany dla niepełnosprawnych

     
    Standard techniczny:
  • sufity podwieszane lub alternatywne rozwiązania
  • oprawy oświetleniowe LED (500 lux)
  • wysokość pomieszczeń 2,75 m
  • uchylne okna
  • rolety okienne
  • optymalny dostęp do światła dziennego
  • podłoga podniesiona, wykładzina dywanowa w płytkach
  • okablowanie strukturalne kat. 6a w puszkach podłogowych
  • energooszczędny system ogrzewania, wentylacji i klimatyzacji
  • BMS – system zarządzania budynkiem
  • system kontroli dostępu, ochrona 24/7, monitoring
  • systemy SAP, SSP
  • 5 szybkobieżnych wind
  • dwa niezależne źródła zasilania

Dostęp do powierzchni 24 h na dobę, 7 dni w tygodniu
 
Anna Skwarciak ASK OFFICE
+48 609 842 932
a.skwarciak@askhome.pl

Wszelkie podane przez Pośrednika informacje nie są ofertą w rozumieniu Kodeksu    Cywilnego
 

Podobne oferty

Lokal na wynajem

Wrocław, Krzyki

99 m2 47,00 zł/m2

Lokal na wynajem

Wrocław, Krzyki

120 m2 50,00 zł/m2

Lokal na wynajem

Wrocław, Krzyki

84 m2 47,00 zł/m2

Lokal na wynajem

Wrocław, Krzyki

160 m2 35,00 zł/m2

Agent

Proszę wprowadzić poprawne imię i nazwisko
Proszę wprowadzić poprawny numer telefonu
Proszę wprowadzić poprawny adres e-mail
Proszę zaznaczyć wymagane zgody
Rozwiąż równanie:
16 9
Niepoprawny wynik