Lokal na wynajem Wrocław, Stare Miasto, Centrum

82.00 m²
56,00 zł/m2
2 piętro
ASO-LW-39945

4 592 zł

Lokal na wynajem
Nowa oferta

Szczegóły oferty

Symbol oferty ASO-LW-39945
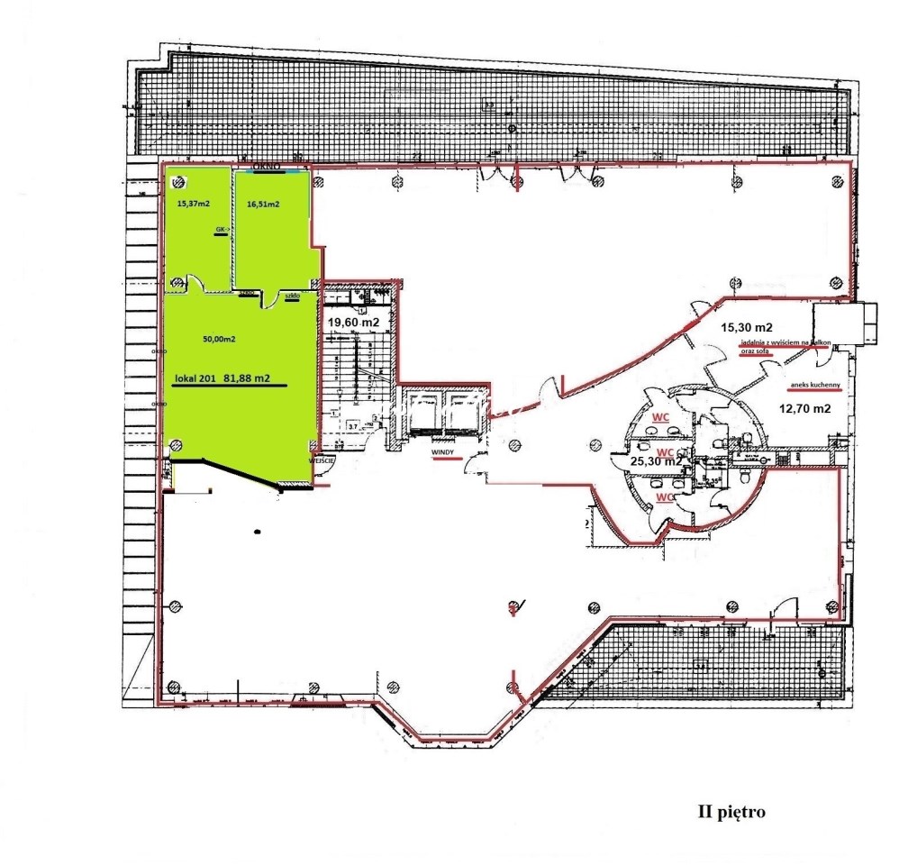
Powierzchnia 82,00 m²
Opłaty wg liczników prąd
Piętro 2
Stan lokalu do wprowadzenia
Typ kaucji trzymiesięczna
Okna PCV
Przeznaczenie lokalu biurowo - magazynowy, biurowy, magazynowy, usługowy
Czynsz najmu netto /m2 56 PLN
Czynsz najmu brutto /m2 69 PLN
Winda tak
Pomieszczenia
Anna Skwarciak

Anna Skwarciak

Agent
Nr licencji: 16519

Napisz wiadomość 832 Ofert

Opis nieruchomości

Prowizje dla biura pokrywa Właściciel nieruchomości.

Kompleks biurowy  usytuowany w Centrum Wrocławia
Biurowiec Klasy A
Całkowita powierzchnia budynku: 6 510m2
Parking podziemny
Parking naziemny
Proponowana powierzchnia 35-1500 m2
Współczynnik części wspólnych -10%
Dostępność: 1.02.2025r.
 
Czynsz najmu powierzchni biurowej – 56 PLN/ 1m2/m-c
Opłata service charge – 26,50 PLN/ 1m² /m-c
Opłata za energię elektryczną
1 miejsce postojowe  250 - 550 PLN / m-c

Sugerowana powierzchnia lokal na II p. 82 m2.
Open space +1 salka konferencyjna, gabinet.

Łazienka  w częściach wspólnych.

Dostępne lokale:
 - 39,30 m2     
-  75,00 m2    
-  81,88 m2    
- 103,90 m2    
-  99,43 m2     
- 107,26 m2   
- 116,83 m2    
- 128,40 m2     
- 130,00 m2     
- 135,73 m2     
- 213,00 m2    




 
Standard:

  • zasilanie elektryczne dwustronne, stacja transformatorowa w budynku
  • zasilanie CO, energia cieplna, węzeł cieplny w budynku
  • klimakonwektorowy  system schładzania i ogrzewania  budynku
  • stolarka okienna: aluminium / okna uchylne
  • windy szt. 2
  • balkony szt. 3
  • taras widokowy
  • całodobowa recepcja/ochrona
  • audytoryjna sala konferencyjna na 100 miejsc
  • stolarka drzwiowa: aluminium, drewno, szkło
  • ściany: korytarze murowane, działowe GK
  • sufity podwieszane systemowe
  • wykładziny dywanowe
  • okablowanie teletechniczne
  • system p.poż.
  • system CCTV
  • ochrona/monitoring 
 
Anna Skwarciak ASK OFFICE
+48 609 842 932
a.skwarciak@askhome.pl

Podobne oferty

Lokal na wynajem

Wrocław, Stare Miasto

71 m2 51,00 zł/m2

Lokal na wynajem

Wrocław, Stare Miasto

66 m2 60,00 zł/m2

Lokal na wynajem

Wrocław, Stare Miasto

83 m2 51,00 zł/m2

Lokal na wynajem

Wrocław, Stare Miasto

68 m2 50,00 zł/m2

Agent

Proszę wprowadzić poprawne imię i nazwisko
Proszę wprowadzić poprawny numer telefonu
Proszę wprowadzić poprawny adres e-mail
Proszę zaznaczyć wymagane zgody
Rozwiąż równanie:
11 4
Niepoprawny wynik