Lokal na wynajem Wrocław, Stare Miasto, Centrum

64.00 m²
55,00 zł/m2
3 piętro
ASO-LW-39982

3 520 zł

Lokal na wynajem
Nowa oferta

Szczegóły oferty

Symbol oferty ASO-LW-39982
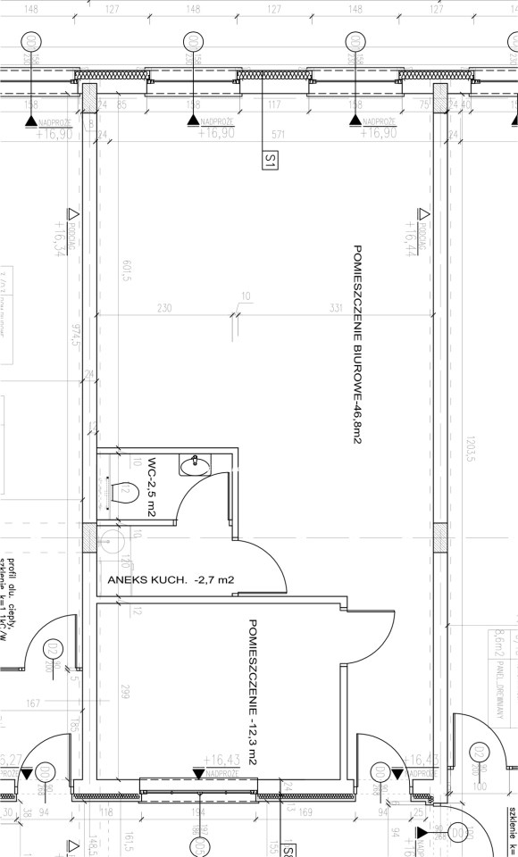
Powierzchnia 64,00 m²
Rodzaj budynku biurowiec
Kaucja zabezp. 3520
Piętro 3
Liczba pięter w budynku 5
Stan lokalu idealny
Typ kaucji jednomiesięczna
Okna nowe PCV
Przeznaczenie lokalu biurowy, usługowy
Czynsz najmu netto /m2 55 PLN
Czynsz najmu brutto /m2 68 PLN
Ogrzewanie miejskie
Alarm tak
Winda tak
Liczba wind 1
Przystosowania dla niepełnosprawnych tak
Możliwość parkowania w pobliżu
Położenie lokalu główna ulica handlowa
Wejście od ulicy
Pomieszczenia
Liczba pomieszczeń biurowych 2
Liczba pomieszczeń socjalnych 1
Liczba pomieszczeń sanitarnych 1
Anna Skwarciak

Anna Skwarciak

Agent
Nr licencji: 16519

Napisz wiadomość 832 Ofert

Opis nieruchomości

Oferta skierowana do wymagających Klientów. Prezentuje lokal o powierzchni 64 m2 usytuowany na III piętrze kamienicy biurowej posadowionej w okolicy wrocławskiego Rynku. Na wymienioną powierzchnie przypadają : pokój otwarty , gabinet,  socjal, łazienka. Powierzchnia klimatyzowana. Obiekt wyposażony w windę. Całodobowa ochrona z recepcją. Opłata eksploatacyjna 34 zł/m2. Energia według zużycia Więcej informacji udzielimy pod numerem telefonu 609 842 932, Anna Skwarciak, ASK OFFICE

Podobne oferty

Lokal na wynajem

Wrocław, Stare Miasto

71 m2 51,00 zł/m2

Lokal na wynajem

Wrocław, Stare Miasto

66 m2 60,00 zł/m2

Lokal na wynajem

Wrocław, Stare Miasto

83 m2 51,00 zł/m2

Lokal na wynajem

Wrocław, Stare Miasto

68 m2 50,00 zł/m2

Agent

Proszę wprowadzić poprawne imię i nazwisko
Proszę wprowadzić poprawny numer telefonu
Proszę wprowadzić poprawny adres e-mail
Proszę zaznaczyć wymagane zgody
Rozwiąż równanie:
27 1
Niepoprawny wynik