Lokal na wynajem Wrocław, Fabryczna, Grabiszyn

58.00 m²
50,00 zł/m2
parter
ASO-LW-40956

2 900 zł

Lokal na wynajem
Nowa oferta

Szczegóły oferty

Symbol oferty ASO-LW-40956
Powierzchnia 58,00 m²
Rodzaj budynku BUDYNEK BIUROWY
Piętro parter
Typ kaucji trzymiesięczna
Okna PCV
Rodzaj lokalu jednopoziomowy
Przeznaczenie lokalu biurowo - magazynowy, biurowy, handlowo-usługowy, handlowy, usługowy
Czynsz najmu brutto /m2 62 PLN
Winda tak
Anna Skwarciak

Anna Skwarciak

Agent
Nr licencji: 16519

Napisz wiadomość 924 Ofert

Opis nieruchomości

Prowizje dla biura pokrywa Właściciel nieruchomości.

Obiekt biurowy o powierzchni 3 600  m2

Parking naziemny –
Miejsce postojowe 250,00 PLN /m-c

Proponowana powierzchnia 14-200 m2
Współczynnik części wspólnych -0 %
Dostępność: do uzgodnienia
 
Czynsz najmu powierzchni biurowej – 50,00-PLN/ 1m2/m-c
Opłata service charge – 25,00 PLN/ 1m2 /m-c 

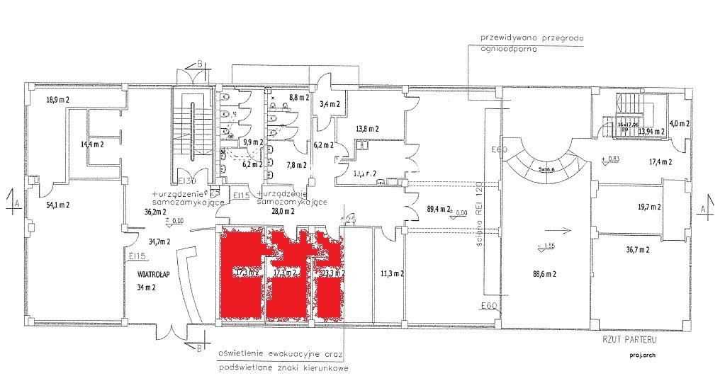
Prezentowana powierzchnia to lokal o powierzchni  58 m2  (pokoje 17,3m2; 17,3m2; 23,3m2)



Kuchnia,  łazienki w częściach wspólnych.

Dostępne powierzchnie:

- 14m2
- 21 m2
- 42m2
- 66m2
- 88 m2

-105 m2
Standard:

  • Dozorowany parking 24h/
  • Sale konferencyjne
  • Ochrona i monitoring
  • Pokój  śniadań/kuchnia
  • Lokal gastronomiczny
  • Nowoczesne windy osobowe
  • Obiekt przystosowany dla niepełnosprawnych
  • Stojaki na rowery
  • Parking dla gości w cenie czynszu najmu
  •  Konserwator



Dostęp do powierzchni 24 h na dobę, 7 dni w tygodniu
 
Anna Skwarciak ASK OFFICE
+48 609 842 932
a.skwarciak@askhome

Wszelkie podane przez Pośrednika informacje nie są ofertą w rozumieniu Kodeksu Cywilnego

 

Podobne oferty

Lokal na wynajem

Wrocław, Fabryczna

64 m2 56,69 zł/m2

Lokal na wynajem

Wrocław, Fabryczna

66 m2 55,00 zł/m2

Lokal na wynajem

Wrocław, Fabryczna

42 m2 49,00 zł/m2

Lokal na wynajem

Wrocław, Fabryczna

64 m2 45,00 zł/m2

Agent

Proszę wprowadzić poprawne imię i nazwisko
Proszę wprowadzić poprawny numer telefonu
Proszę wprowadzić poprawny adres e-mail
Proszę zaznaczyć wymagane zgody
Rozwiąż równanie:
25 5
Niepoprawny wynik