Lokal na wynajem Wrocław, Stare Miasto, Centrum

265.00 m²
59,00 zł/m2
3 piętro
ASO-LW-40360

15 635 zł

Lokal na wynajem
Nowa oferta

Szczegóły oferty

Symbol oferty ASO-LW-40360
Powierzchnia 265,00 m²
Rodzaj budynku biurowiec
Opłaty wg liczników prąd
Piętro 3
Liczba pięter w budynku 2
Stan lokalu idealny
Typ kaucji do uzgodnienia
Okna nowe PCV
Instalacje niewymienione
Przeznaczenie lokalu usługowy, handlowy, biurowy
Czynsz najmu brutto /m2 72 PLN
Ogrzewanie własne gazowe
Alarm tak
Winda tak
Możliwość parkowania tak
Własny parking tak
Położenie lokalu ruchliwa ulica
Wejście od ulicy
Pomieszczenia
Liczba pomieszczeń biurowych 7
Anna Skwarciak

Anna Skwarciak

Agent
Nr licencji: 16519

Napisz wiadomość 860 Ofert

Opis nieruchomości

 
 
Prowizje dla biura pokrywa Właściciel nieruchomości.

Kompleks biurowy  usytuowany jest w Centrum.
Biurowiec Klasy B+
Całkowita powierzchnia budynku: 1500m2
Parking naziemny 
Proponowana powierzchnia 265 m2
Współczynnik części wspólnych -30 m2
Dostępność: do uzgodnienia
 
Czynsz najmu powierzchni biurowej – 59,00- 62,00PLN/ 1m2/m-c
Opłata service charge – 29,50 PLN/ 1m2 /m-c
Opłata za energię elektryczną, wodę.
1 miejsce postojowe w cenie czynszu najmu

Dodatkowe  miejsce postojowe   320,00 PLN / m-c
 


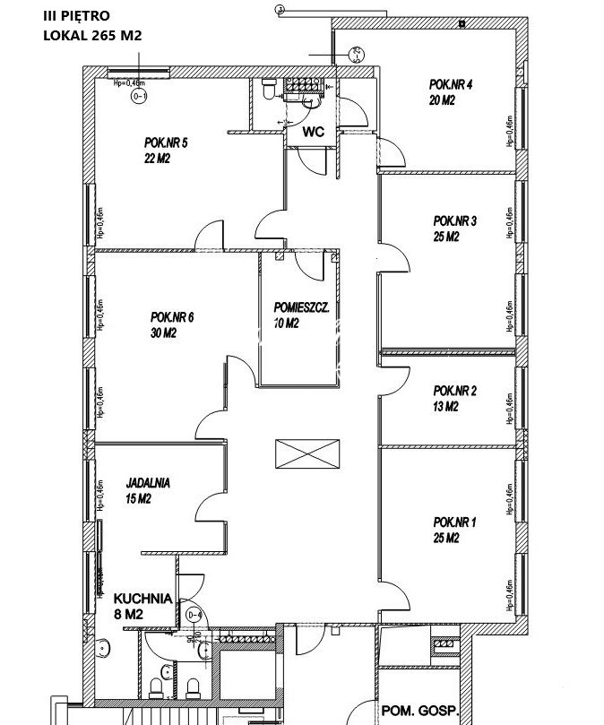
Prezentowana powierzchnia to lokal o powierzchni  265 m2.
Hol, sześć pokoi, archiwum, , kuchnia,  łazienka.
Dostępne lokale:
  • 258m2
  • 265m2


Standard:
- powierzchnia wykończona
wysokość pomieszczeń: 2,80 m
- sufity podwieszane rastrowe
- instalacja SAP
- systemy klimatyzacji i wentylacji mechanicznej 
- wentylacja realizowana przez centralę wentylacyjną 
- klimatyzacja w każdym pokoju regulowana indywidualnie
- instalacja elektryczna z pełnym osprzętem elektroinstalacyjnym 
- instalacja teletechniczna CAT 5
- ogrzewanie: miejskie Fortum

Dostęp do powierzchni 24 h na dobę, 7 dni w tygodniu
 
Anna Skwarciak ASK OFFICE
+48 609 842 932
a.skwarciak@askhome.pl

Podobne oferty

Lokal na wynajem

Wrocław, Stare Miasto

225 m2 50,00 zł/m2

Lokal na wynajem

Wrocław, Stare Miasto

180 m2 63,00 zł/m2

Lokal na wynajem

Wrocław, Stare Miasto

198 m2 59,00 zł/m2

Lokal na wynajem

Wrocław, Stare Miasto

234 m2 58,97 zł/m2

Agent

Proszę wprowadzić poprawne imię i nazwisko
Proszę wprowadzić poprawny numer telefonu
Proszę wprowadzić poprawny adres e-mail
Proszę zaznaczyć wymagane zgody
Rozwiąż równanie:
22 4
Niepoprawny wynik