Lokal na wynajem Wrocław, Krzyki, Przedmieście Oławskie

187.00 m²
76,00 zł/m2
2 piętro
ASO-LW-40392

14 212 zł

Lokal na wynajem
Nowa oferta

Szczegóły oferty

Symbol oferty ASO-LW-40392
Powierzchnia 187,00 m²
Rodzaj budynku biurowiec
Opłaty wg liczników prąd
Piętro 2
Liczba pięter w budynku 6
Stan lokalu bardzo dobry
Typ kaucji trzymiesięczna
Okna aluminiowe
Instalacje dobre
Rodzaj lokalu jednopoziomowy
Przeznaczenie lokalu usługowy, biurowy
Czynsz najmu netto /m2 76 PLN
Czynsz najmu brutto /m2 93 PLN
Winda tak
Liczba wind 3
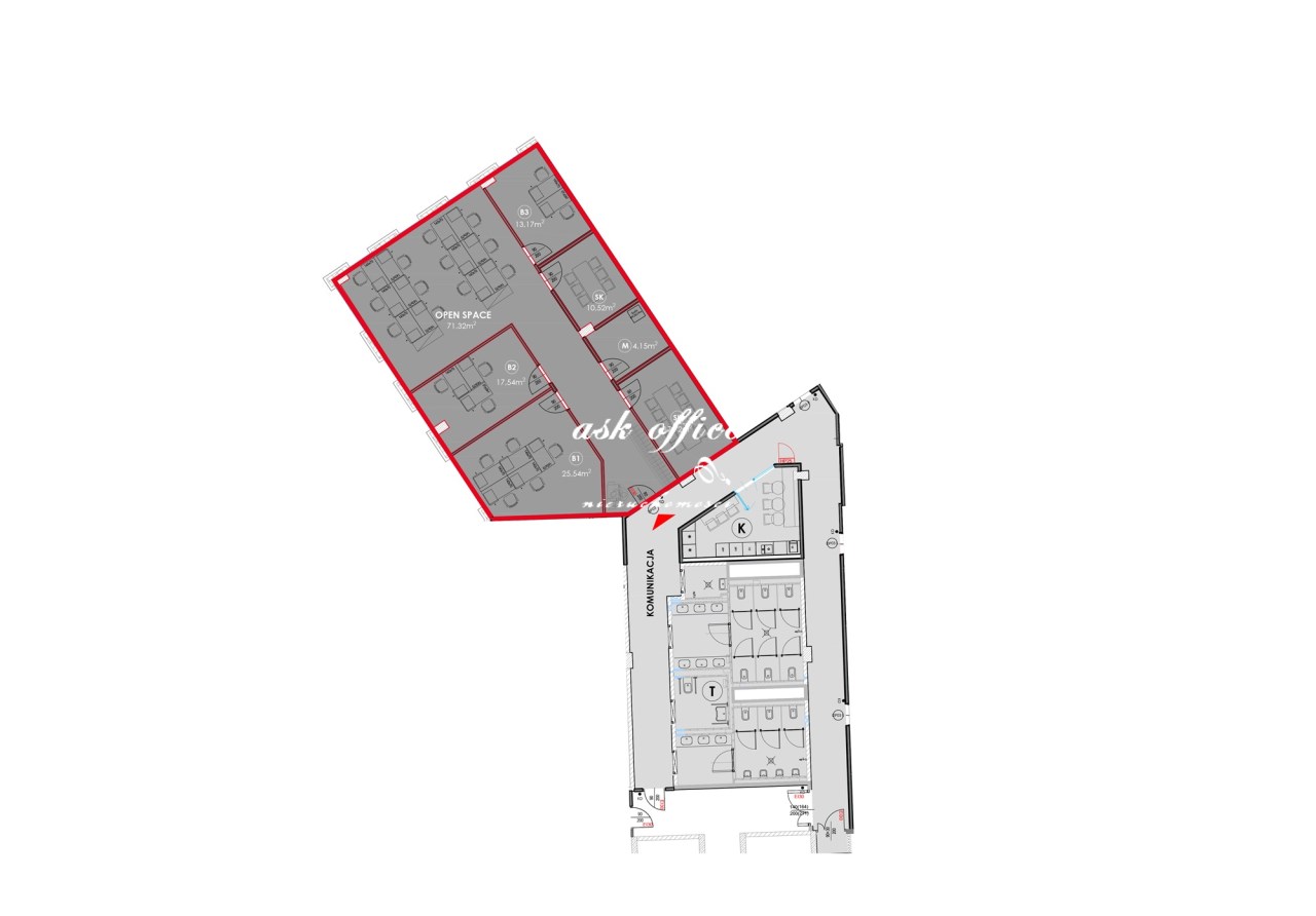
Pomieszczenia
Anna Skwarciak

Anna Skwarciak

Agent
Nr licencji: 16519

Napisz wiadomość 858 Ofert

Opis nieruchomości

Prowizje pokrywa Właściciel nieruchomości

Kompleks biurowy  usytuowany jest w południowo-wschodniej części i Wrocławia
Biurowiec Klasy A
Całkowita powierzchnia budynku: 13 500m2

Kondygnacje - 6
Parking  naziemny 40 miejsc

Parking podziemny  155 m2
Współczynnik miejsc parkingowych 1/70 mkw
Proponowana powierzchnia 58m2 -648 m2
Współczynnik części wspólnych 6%

Dostępność: 1.09.2025 r.
 
Czynsz najmu powierzchni biurowej – 76,00 PLN/ 1m2/m-c
Service charge - 23,00 PLN/1m2/m-c
Media według zużycia
1 miejsce postojowe  300,00PLN/ m-c


Prezentowana powierzchnia lokal 187 m2 brutto
Open space, trzy  pokoje, dwie salki  konferencyjne, archiwum,  serwerownia.

Umowa na min. 36 miesięcy.

Dostępne lokale na  II p.
69m2
109m2
188m2
197m2
81m2
85m2


Udogodnienia dla najemców

  • energooszczędny system ogrzewania
  • optymalny dostęp do światła dziennego
  • reprezentacyjne lobby
  • ochrona i monitoring budynku
  • system kontroli dostępu
  • stacje ładowania samochodów elektrycznych
  • miejsca parkingowe dla rowerów
  • obiekt przystosowany dla niepełnosprawnych

     
    Standard techniczny:
  • sufity podwieszane lub alternatywne rozwiązania
  • oprawy oświetleniowe LED (500 lux)
  • wysokość pomieszczeń 2,75 m
  • uchylne okna
  • rolety okienne
  • optymalny dostęp do światła dziennego
  • podłoga podniesiona, wykładzina dywanowa w płytkach
  • okablowanie strukturalne kat. 6a w puszkach podłogowych
  • energooszczędny system ogrzewania, wentylacji i klimatyzacji
  • BMS – system zarządzania budynkiem
  • system kontroli dostępu, ochrona 24/7, monitoring
  • systemy SAP, SSP
  • 5 szybkobieżnych wind
  • dwa niezależne źródła zasilania

Dostęp do powierzchni 24 h na dobę, 7 dni w tygodniu
 
Anna Skwarciak ASK OFFICE
+48 609 842 932
a.skwarciak@askhome.pl

Wszelkie podane przez Pośrednika informacje nie są ofertą w rozumieniu Kodeksu    Cywilnego
 

Podobne oferty

Lokal na wynajem

Wrocław, Krzyki

180 m2 59,00 zł/m2

Lokal na wynajem

Wrocław, Krzyki

245 m2 55,00 zł/m2

Lokal na wynajem

Wrocław, Krzyki

350 m2 32,00 zł/m2

Lokal na wynajem

Wrocław, Krzyki

250 m2 43,00 zł/m2

Agent

Proszę wprowadzić poprawne imię i nazwisko
Proszę wprowadzić poprawny numer telefonu
Proszę wprowadzić poprawny adres e-mail
Proszę zaznaczyć wymagane zgody
Rozwiąż równanie:
28 5
Niepoprawny wynik