Lokal na wynajem Wrocław, Stare Miasto, Przedmieście Świdnickie

212.00 m²
63,00 zł/m2
parter
ASO-LW-41212

13 356 zł

Lokal na wynajem
Nowa oferta

Szczegóły oferty

Symbol oferty ASO-LW-41212
Powierzchnia 212,00 m²
Rodzaj budynku biurowiec
Opłaty wg liczników CO, prąd, Woda ciepła, Woda zimna
Piętro parter
Stan lokalu do wprowadzenia
Typ kaucji do uzgodnienia
Okna PCV
Instalacje dobre
Rodzaj lokalu jednopoziomowy
Przeznaczenie lokalu biurowo - magazynowy, biurowy, handlowo-usługowy
Czynsz najmu netto /m2 63 PLN
Czynsz najmu brutto /m2 77 PLN
Winda tak
Anna Skwarciak

Anna Skwarciak

Agent
Nr licencji: 16519

Napisz wiadomość 958 Ofert

Opis nieruchomości

Prowizje dla biura pokrywa Właściciel Nieruchomości

Kompleks biurowy  usytuowany w Ścisłym Centrum
Biurowiec Klasy B+
Parking podziemny na 132 miejsc postojowych
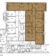
Proponowana powierzchnia 212m2
Wsp. części wspólnych części 15m2

Dostępność: do uzgodnienia
 
Czynsz najmu powierzchni biurowej – 63,00PLN/ 1m2/m-c
Opłata service charge – 7 PLN/ 1m2 /m-c
Media według zużycia
1 miejsce postojowe  250  PLN / m-c

Proponowana powierzchnia:  212 m2 usytuowana na parterze obiektu.
Sekretariat, sześć pokoi, salka konferencyjna, kuchnia.

Toalety w częściach wspólnych

Fotografie są jedynie poglądowe

INFORMACJE TECHNICZNE
System ochrony budynku
Budynek objęty jest całodobową ochroną osobową, przez siedem dni w tygodniu. Ponadto w budynku funkcjonuje system monitoringu wizyjnego wraz z rejestracją. Na system ten składa się zestaw kamer zainstalowanych w miejscach pozwalających kontrolować ruch osobowy w budynku oraz na parkingu.
Instalacje w budynku
Konstrukcję budynku stanowią mury nośnie wykonane z cegły ceramicznej, na których oparte są stropy żelbetonowe. Budynek posiada pełne uzbrojenie techniczne, tj. przyłącza: wodne, kanalizacyjne, elektryczne oraz grzewcze. Instalacje w budynku: – centralne ogrzewanie, zasilane z miejskiej sieci ciepłowniczej, – cieplej i zimnej wody, – kanalizacji deszczowej i sanitarnej, – instalacja SAP, – instalacja oddymiająca klatki schodowe, – odgromowa, – wewnętrzna sieć hydrantowa, – wentylacja mechaniczna nawiewno – wywiewna i klimatyzacja, – sieć logiczna w każdym wynajmowanym lokalu, – piętra I i III wyposażone są w podłogę techniczną.
Powierzchnie użytkowe
W pięciokondygnacyjnym budynku, od parteru do czwartego piętra przygotowano pomieszczenia biurowe, o łącznej powierzchni ok. 6.000 m2. W piwnicach budynku wydzielono pomieszczenia magazynowe na potrzeby najemców.
Parking
Na terenie ogrodzonego parkingu wydzielono 132 stanowiska do parkowania samochodów osobowych najemców oraz ich klientów. Pomyślano również o osobach dojeżdżających do pracy rowerami, dla których ustawiono odpowiednią ilość stojaków do przypinania rowerów.
Anna Skwarciak ASK OFFICE
+48 609 842 932
a.skwarciak@askhome.pl
Więcej ofert na stronie: www.askhome.pl
Wszelkie podane przez Pośrednika informacje nie są ofertą w rozumieniu Kodeksu Cywilnego
 

Podobne oferty

Lokal na wynajem

Wrocław, Stare Miasto

197 m2 51,00 zł/m2

Lokal na wynajem

Wrocław, Stare Miasto

164 m2 62,40 zł/m2

Lokal na wynajem

Wrocław, Stare Miasto

225 m2 50,00 zł/m2

Lokal na wynajem

Wrocław, Stare Miasto

168 m2 56,55 zł/m2

Agent

Proszę wprowadzić poprawne imię i nazwisko
Proszę wprowadzić poprawny numer telefonu
Proszę wprowadzić poprawny adres e-mail
Proszę zaznaczyć wymagane zgody
Rozwiąż równanie:
22 7
Niepoprawny wynik