| Symbol oferty | ASO-LW-40089 | 
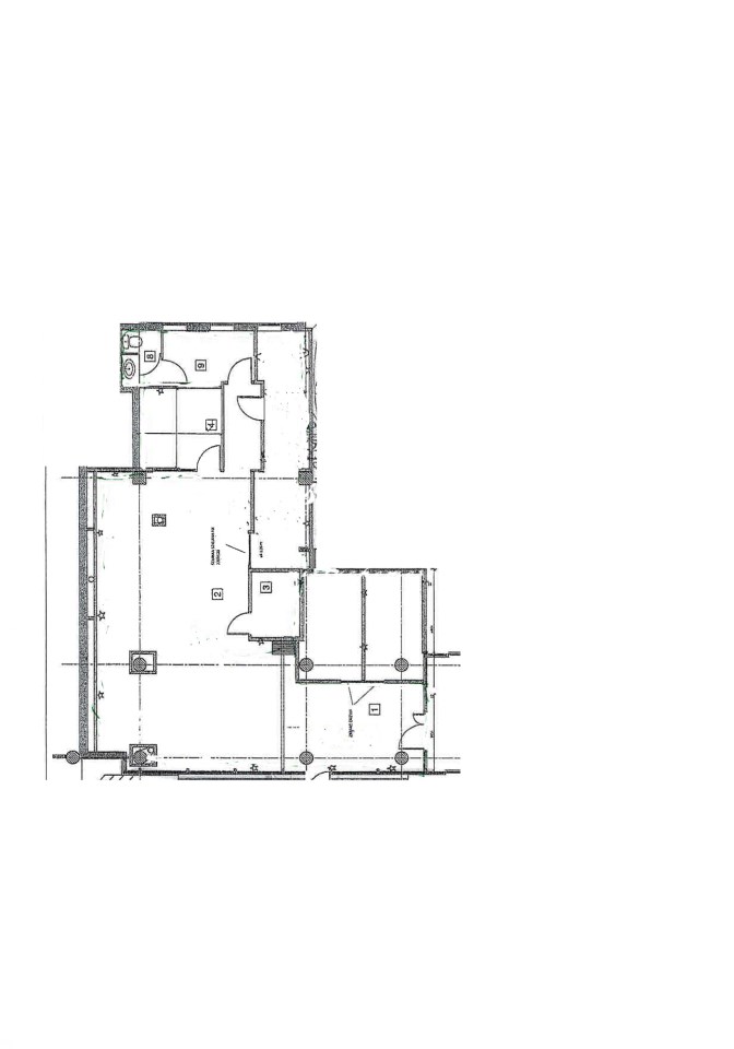
| Powierzchnia | 137,00 m² | 
| Rodzaj budynku | BUDYNEK BIUROWY | 
| Piętro | parter | 
| Stan lokalu | do wykończenia | 
| Typ kaucji | trzymiesięczna | 
| Okna | PCV | 
| Instalacje | dobre | 
| Przeznaczenie lokalu | biurowo - magazynowy, biurowy, handlowo-usługowy, handlowy, inny, magazynowy | 
| Czynsz najmu netto /m2 | 84 PLN | 
| Czynsz najmu brutto /m2 | 102 PLN | 
| Winda | tak | 
| Pomieszczenia | |
 
                        
                    
                            Prowizje dla biura pokrywa Właściciel nieruchomości.
Kompleks biurowy  usytuowany w Centrum Wrocławia
Biurowiec Klasy A
Całkowita powierzchnia budynku: 6 510m2
Parking podziemny
Parking naziemny
Proponowana powierzchnia 35-1000 m2
Współczynnik części wspólnych -10%
Dostępność: 1.06.2025r.
 
Czynsz najmu powierzchni usługowej – 83,50 PLN/ 1m2/m-c
Opłata service charge – 26,50 PLN/ 1m² /m-c
Opłata za energię elektryczną, wodę według zużycia
1 miejsce postojowe  250 - 550 PLN / m-c
Sugerowana powierzchnia lokal na parterze  137 m2.
Duże okna wystawienniczo reklamowe
Sekretariat, open space, 4 salki konferencyjne, kuchnia , toalety, archiwum.
 
Standard:
Agent