Hala na wynajem Wrocław, Fabryczna, Muchobór Mały

507.00 m²
35,00 zł/m2
ASO-HW-40200

17 745 zł

Hala na wynajem
Nowa oferta

Szczegóły oferty

Symbol oferty ASO-HW-40200
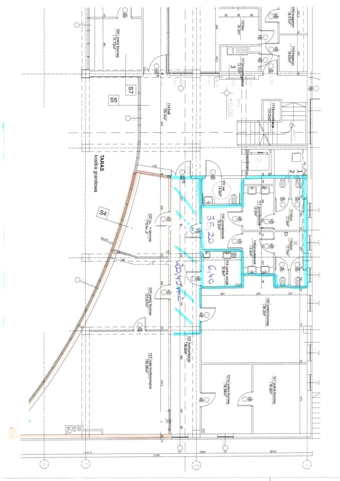
Powierzchnia 507,00 m²
Opłaty wg liczników woda, prąd, CO
Typ kaucji do uzgodnienia
Przeznaczenie hali magazynowy
Czynsz najmu netto /m2 35 PLN
Czynsz najmu brutto /m2 43 PLN
Pomieszczenia
Anna Skwarciak

Anna Skwarciak

Agent
Nr licencji: 16519

Napisz wiadomość 854 Ofert

Opis nieruchomości

Prowizje pokrywa Właściciel nieruchomości

Dostępność: od 1.11. 2025 r.

Kompleks biurowo-magazynowy

Do wynajęcia hala magazynowa -507 m2


Czynsz najmu powierzchni hali  – 35,00 PLN/ 1m2/m-c
Eksploatacja - 15,00 PLN/ 1m2/m-c
 Media według zużycia:
ogrzewanie miejskie.
energia według zużycia.


Obligatoryjnie z powierzchnia biurową o powierzchni 245 m2 (open, space  trzy pokoje 15,44;23,67;56,98m2), socjal, łazienka 

Czynsz najmu powierzchni biurowej  – 45,00 PLN/ 1m2/m-c
Eksploatacja - 17,00 PLN/ 1m2/m-c
Media według zużycia:
ogrzewanie miejskie.
energia według zużycia.


 Standard:
- powierzchnia wykończona
- wysokość hali: pow. 5 -6 m
- wentylacja
- instalacja elektryczna- siła

- przyłącze wody
-  brama wjazdowa
- posadzka niepylna

- węzeł  socjalno -sanitarno -biurowy
- ochrona-monitoring
- miejsca postojowe


Dostęp do powierzchni 24 h na dobę, 7 dni w tygodniu
 
Anna Skwarciak ASK OFFICE
+48 609 842 932

a.skwarciak@askhome.pl
WWW.askhome.pl
Wszelkie podane przez Pośrednika informacje nie są ofertą w rozumieniu Kodeksu Cywilnego
 

Podobne oferty

Nowa oferta

Hala na wynajem

Wrocław, Fabryczna

330 m2 45,00 zł/m2
Nowa oferta

Agent

Proszę wprowadzić poprawne imię i nazwisko
Proszę wprowadzić poprawny numer telefonu
Proszę wprowadzić poprawny adres e-mail
Proszę zaznaczyć wymagane zgody
Rozwiąż równanie:
17 4
Niepoprawny wynik